106 - 189 Kent Street W, Kawartha Lakes, Ontario K9V 5G6

Listed for:
$18
0 beds
0 baths
Listed 52 days ago
Offices for rent: 106 - 189 Kent Street W, Kawartha Lakes, Ontario K9V 5G6

View all 14 photos

About

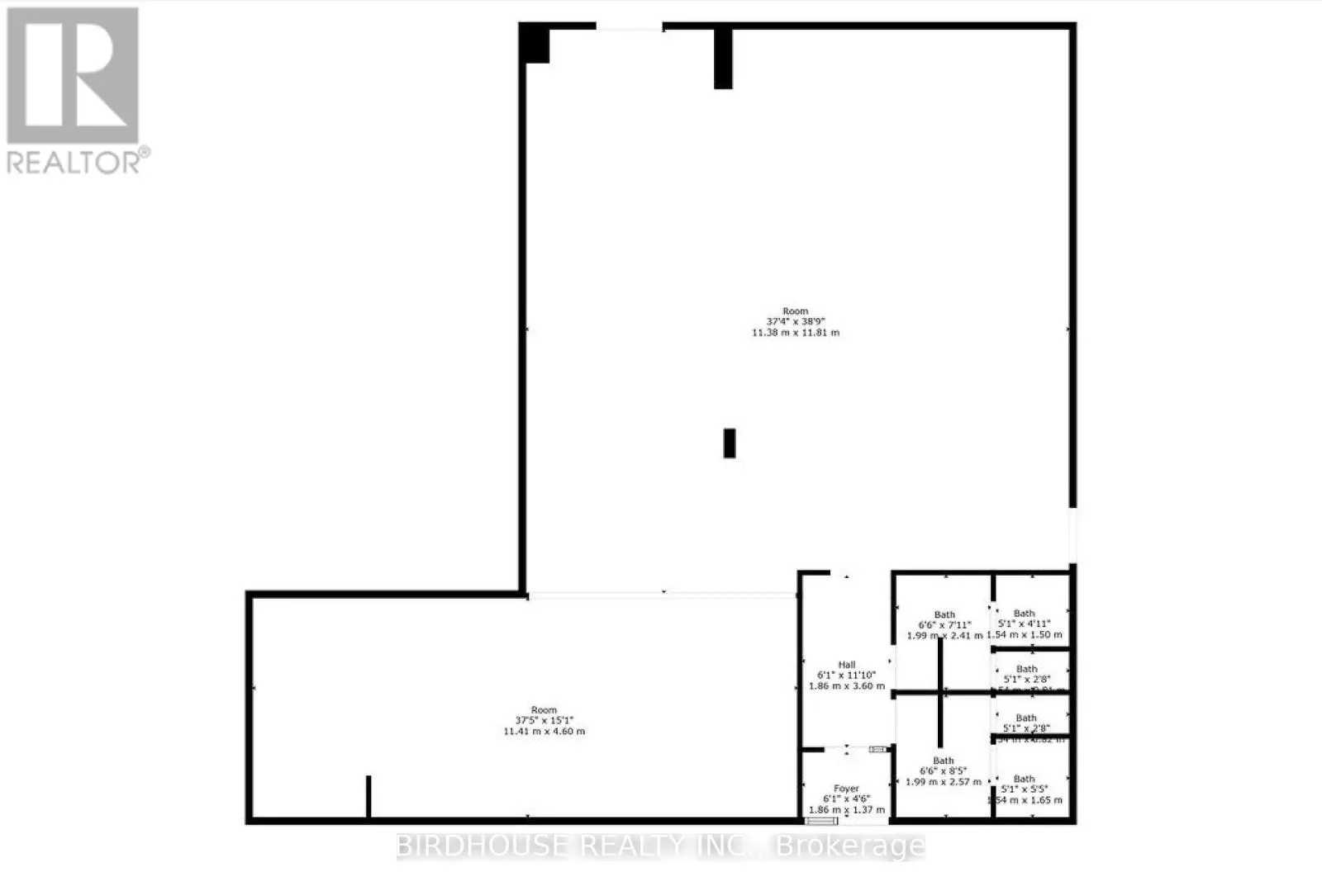
Kent St W & Victoria Ave N Unit 106 Kent Place - Main Floor Leasing Opportunity Of 2300 Sq Ft! Main Entrance From Outside Of Building & Two In Suite Washroom. Located Adjacent To The Passenger Elevator. Kent Place Is A Newly Renovated Premier Downtown Lindsay Commercial Building With An Excellent Mix Of Professional Offices & Services. Fantastic Tenant Mix With Businesses Such As RBC Bank, Pharmacy, An Insurance Agency, Many Law Offices & Medical Offices. Lovely Open Atrium With Skylights With Passenger Elevator. Plenty Of Available Shared Parking On Site Plus Municipal Parking Nearby. Flexible Lease Terms Are Available! **EXTRAS** Additional Rent: $16.30 PSF. (id:27476)

Property Highlights

MLS® Number
X12292173
Type
Office
Community Name
Lindsay
Land Size
174 x 171 FT

Building

Building Type
Offices
Square Footage
2300 sqft
Amenities
Public Transit
Fireplace Present
No
Basement Type
Basement Features
Building Heating Type
Baseboard heaters
Heating Fuel
Building Cooling Type
Fully air conditioned

Utilities

Water
Municipal water

Location

Learn more about this property
Listing provided by:
BIRDHOUSE REALTY INC.
MLS® number:
X12292173
Agent:
Keith Mcdonald
*Indicates required field
Name is required
Email is required
Please enter a valid phone number (e.g., 416-111-1111).