195 Elgin Street W, Kawartha Lakes, Ontario K9V 6B1

Listed for:
$635,000
5 beds
2 baths
Listed 45 days ago
House for rent: 195 Elgin Street W, Kawartha Lakes, Ontario K9V 6B1

View all 50 photos

Learn more about this property
Listing provided by:
ROYAL LEPAGE KAWARTHA LAKES REALTY INC.
MLS® number:
X12445130
Agent:
Patricia Boyd
*Indicates required field
Name is required
Email is required
Please enter a valid phone number (e.g., 416-111-1111).

About

Cross Streets: Angeline St N. ** Directions: N on Angeline St L on Elgin St. Welcome to this spacious 3 & 2 bed , fully bricked bungalow in a sought after neighbourhood, just minutes from schools, shops, parks and hospital. Boarding on a municipal park offering privacy and open views. This home features over2000 sf of living space, with newer kitchen, spacious bedrooms, hardwood floors, freshly painted, an attached 2 car garage, large sunroom overlooking parklike private yard. The fully finished basement has plenty of storage, and a cozy gas fireplace. Flexible closing , book your showing today. (id:27476)

Property Highlights

MLS® Number
X12445130
Type
Single Family
Community Name
Lindsay
Ownership Type
Freehold
Land Size
43 x 146 FT
Parking Space Total
6

Building

Building Type
House
Storeys
1.00
Square Footage
1100 - 1500 sqft
Bathrooms Total
2
Bedrooms Above Ground
3
Bedrooms Total
5
Amenities
Fireplace(s)
Exterior Finish
Brick
Fireplace Present
Yes
Basement Type
N/A (Finished)
Basement Features
Building Heating Type
Forced air
Heating Fuel
Natural gas
Building Cooling Type
Central air conditioning

Utilities

Water
Municipal water
Utility Sewer
Sanitary sewer

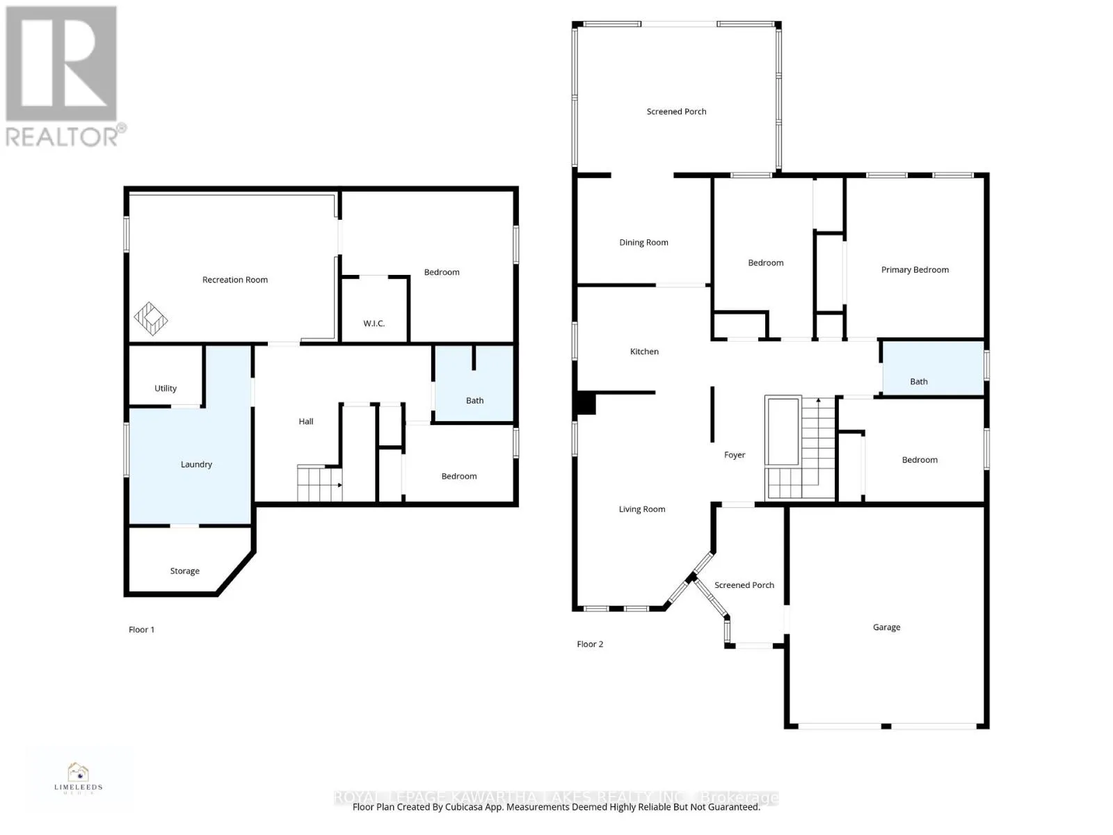
Room Layout

Bedroom
Lower level
4.8 m x 4.2 m
Bedroom
Lower level
3 m x 2.2 m
Bathroom
Lower level
2.2 m x 2.1 m
Bedroom
Main level
2.8 m x 4.5 m
Bedroom
Main level
3.9 m x 4.5 m
Bedroom
Main level
4.1 m x 2.9 m
Bathroom
Main level
2.8 m x 1.5 m

Location

Street Spotlight - For sale