60 Everett Road, Kawartha Lakes, Ontario K0M 1K0

Listed for:
$1,279,900
3 beds
3 baths
Listed Today
House for rent: 60 Everett Road, Kawartha Lakes, Ontario K0M 1K0

View all 49 photos

Learn more about this property
Listing provided by:
COLDWELL BANKER - R.M.R. REAL ESTATE
MLS® number:
X12565324
Agent:
Joel Anthony Pringle
*Indicates required field
Name is required
Email is required
Please enter a valid phone number (e.g., 416-111-1111).

About

35/EVERETT Seamless Balsam Lake Living with Gull River Serenity Welcome to 60 Everett Rd-an exclusive waterfront retreat where the prestige of Balsam Lake flows naturally into the calm of the Gull River. Approx 3 km lock free by boat to the broader lake, & Less than 1 km to Coboconk this property is much more than a riverfront it delivers Balsam Lake living with extra tranquility and convenience. Western exposure for sunset views and a front row seat to Indian Point's natural beauty, the setting is peaceful and picturesque. The (approx.)149 foot shoreline is level and elder friendly, with no stairs or steep drop offs. Wade in from shore, jump from the dock, or moor a larger boat in calm, protected waters-this waterfront truly has it all. Offered for the first time by the original owners, this all brick bungalow was crafted in 2000 as a year round retirement home-built with care and appreciation for the land. Solidly constructed and exceptionally maintained, it reflects thoughtful planning throughout. The layout is exceptional, with a spacious main level complemented by a full walkout lower level that doubles your living area and enhances your connection to the water. The open concept kitchen, dining, and living area flows seamlessly to a lakeside deck. The primary suite offers its own walkout, water views, ensuite, and walk in closet. Additional highlights include main floor laundry, a huge cold room, steel roof, attached garage, and a lakeside shed for gear or a cozy retreat. Surrounded by nature-deer, loons, and other birds are regular visitors-this property offers tranquility in every season. It's a place to settle in, soak up sunsets, and let the rhythm of the water shape your days. 60 Everett Drive isn't just a property-it's a lifestyle waiting to be discovered. (id:27476)

Property Highlights

MLS® Number
X12565324
Type
Single Family
Community Name
Bexley
Ownership Type
Freehold
Land Size
149 x 227.2 FT ; ROAD 103.21 / SOUTH DEPTH 179.22|under 1/2 acre
Parking Space Total
7

Building

Building Type
House
Storeys
1.00
Square Footage
1500 - 2000 sqft
Bathrooms Total
3
Bedrooms Above Ground
3
Bedrooms Total
3
Amenities
Marina
Exterior Finish
Brick
Fireplace Present
Yes
Basement Type
N/A (Finished)
Basement Features
Walk out
Building Heating Type
Heat Pump, Not known
Heating Fuel
Electric
Building Cooling Type

Utilities

Water
Drilled Well
Utility Sewer
Septic System

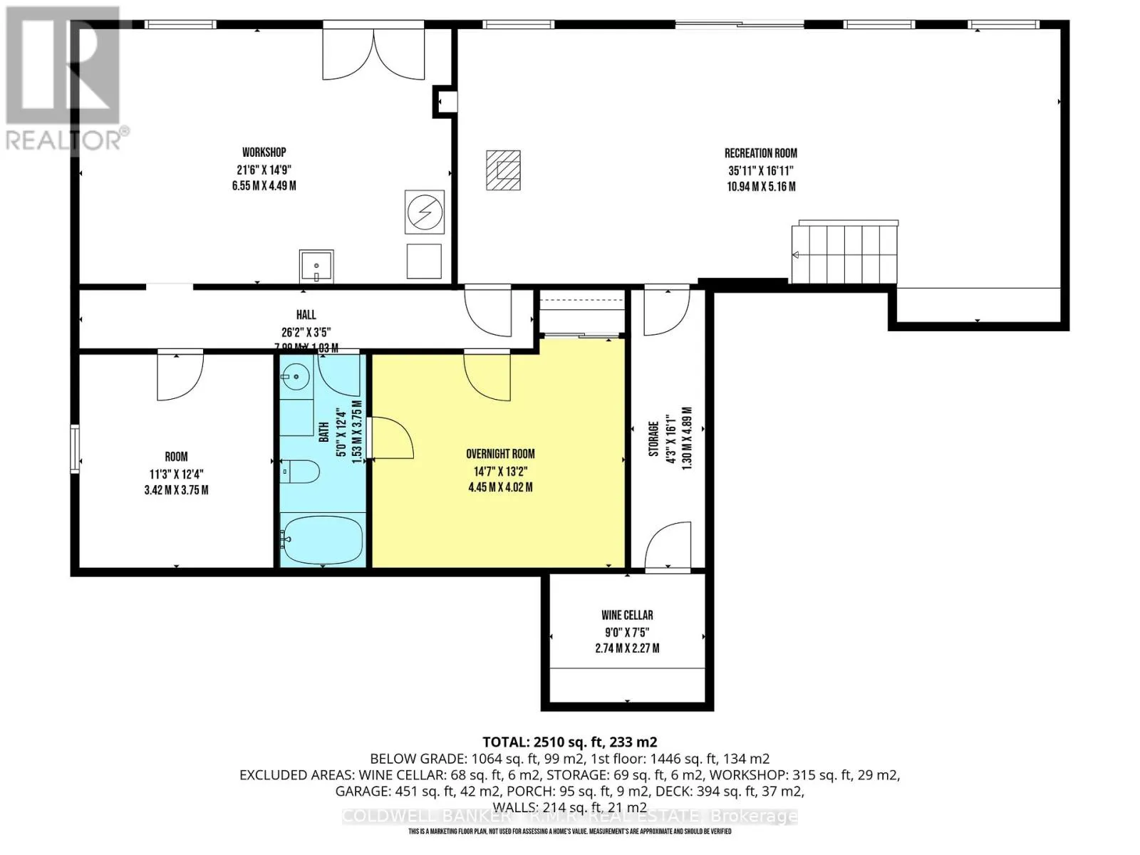
Room Layout

Other
Lower level
3.42 m x 3.75 m
Other
Lower level
4.45 m x 4.02 m
Cold room
Lower level
2.74 m x 2.27 m
Recreational, Games room
Lower level
10.94 m x 5.16 m
Workshop
Lower level
6.55 m x 4.49 m
Foyer
Main level
1.77 m x 3.38 m
Living room
Main level
4.52 m x 6.1 m
Dining room
Main level
1.75 m x 3.36 m
Kitchen
Main level
4.34 m x 3.35 m
Primary Bedroom
Main level
3.79 m x 4.47 m
Bedroom 2
Main level
3.8 m x 3.28 m
Bedroom 3
Main level
3.7 m x 3.28 m
Laundry room
Main level
2.88 m x 1.69 m

Location

Community Spotlight: Homes For sale in Your Neighborhood