32 Melbourne Street E, Kawartha Lakes, Ontario K9V 1X7

Listed for:
$514,900
5 beds
3 baths
Listed 2 days ago
House for rent: 32 Melbourne Street E, Kawartha Lakes, Ontario K9V 1X7

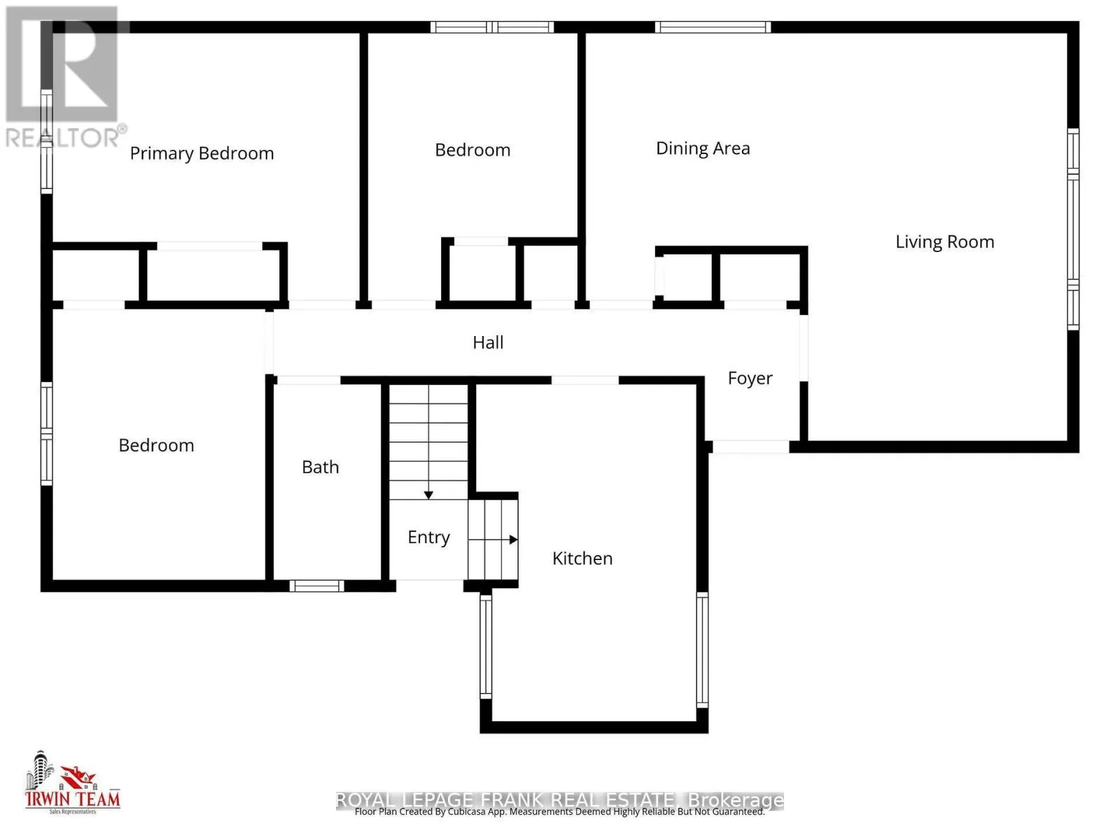
View all 41 photos

About

Cross Streets: MELBOURNE ST E/HURON ST. ** Directions: LINDSAY ST S, RIGHT ON MELBOURNE ST E. Updated all-brick bungalow perfect for retirees or first time buyers! This solid 3+1 bedroom, 1137 sq. ft. bungalow is set on a deep 'pool sized' lot surrounded by mature trees. Inside, the main floor shines with refinished hardwood flooring, a completely renovated kitchen, and a stylish updated bathroom. The lower level, with its convenient back door entrance, provides excellent in-law or secondary suite potential. It includes a spacious rec room, large bedroom, office/den, 2-piece bath, and generous storage space. Natural gas heating & central air for year round comfort! Rare backyard access from Huron St. allows for the potential to pursue a second driveway. Currently there is space for 5 vehicles, including the carport. Whether your looking for a family home with room to grow or an investment with multiple possibilities, this bungalow is a rare find. (id:27476)

Property Highlights

MLS® Number
X12793190
Type
Single Family
Community Name
Lindsay
Ownership Type
Freehold
Land Size
58.9 x 155.4 FT ; ACCESS FROM HURON ST. ALSO|under 1/2 acre
Parking Space Total
4

Building

Building Type
House
Storeys
1.00
Square Footage
1100 - 1500 sqft
Bathrooms Total
3
Bedrooms Above Ground
3
Bedrooms Total
5
Amenities
Fireplace(s) Golf Nearby, Hospital, Park, Public Transit, Schools
Exterior Finish
Brick
Fireplace Present
Yes
Basement Type
Full (Partially finished)
Basement Features
Building Heating Type
Forced air
Heating Fuel
Natural gas
Building Cooling Type
Central air conditioning

Utilities

Water
Municipal water
Utility Sewer
Sanitary sewer

Room Layout

Bathroom
Basement
Measurements not available
Laundry room
Basement
4.09 m x 4.04 m
Utility room
Basement
4.04 m x 3.5 m
Recreational, Games room
Basement
5.36 m x 4.77 m
Bedroom 4
Basement
3.58 m x 3.12 m
Den
Basement
4.38 m x 3.5 m
Living room
Main level
5.36 m x 3.4 m
Kitchen
Main level
4.42 m x 2.9 m
Dining room
Main level
3.5 m x 2.92 m
Primary Bedroom
Main level
4.04 m x 3.53 m
Bedroom 2
Main level
3.56 m x 2.79 m
Bedroom 3
Main level
3.53 m x 2.77 m
Bathroom
Main level
Measurements not available

Location

Learn more about this property
Listing provided by:
ROYAL LEPAGE FRANK REAL ESTATE
MLS® number:
X12793190
Agent:
Max Irwin
*Indicates required field
Name is required
Email is required
Please enter a valid phone number (e.g., 416-111-1111).

Community Spotlight: Homes For sale in Your Neighborhood