284 Victoria Avenue N, Kawartha Lakes, Ontario K9V 6A8

Listed for:
$699,900
4 beds
4 baths
Listed 9 days ago
House for rent: 284 Victoria Avenue N, Kawartha Lakes, Ontario K9V 6A8

View all 50 photos

About

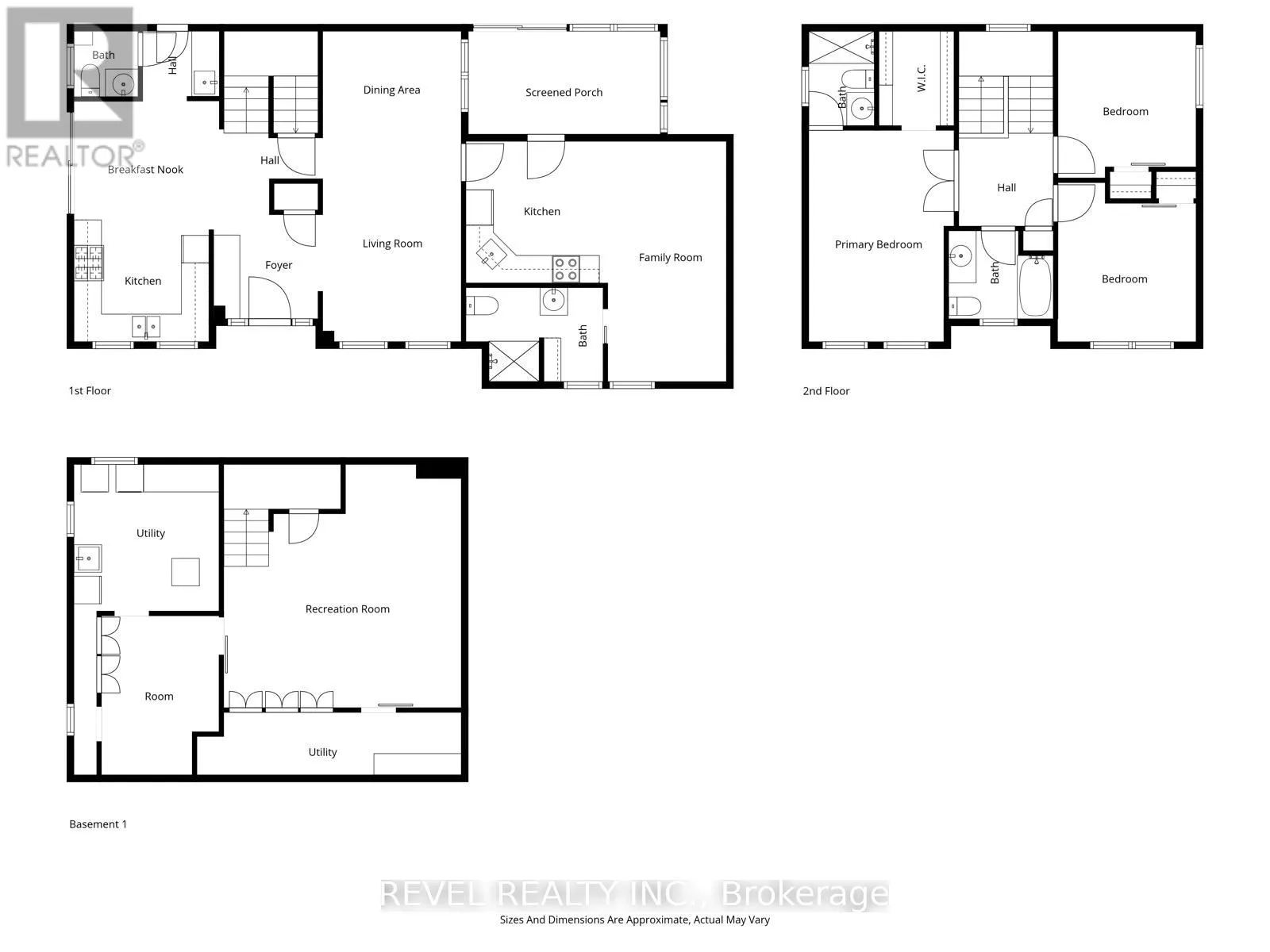
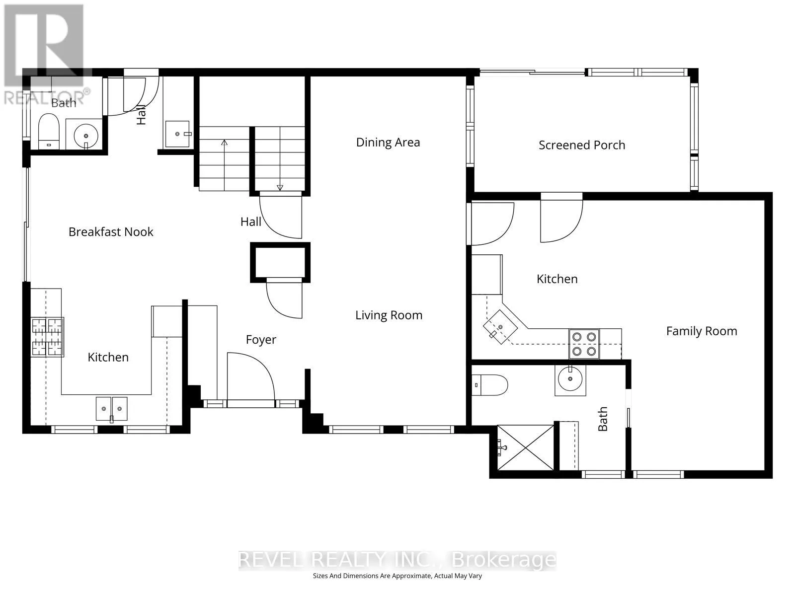
Cross Streets: Victoria Ave N & Orchard Park Rd. ** Directions: Kent St W to Victoria Ave N. Proceed North to Orchard Park Rd. Property Driveway is on the southeast corner of Victoria Ave N just before the Stop Sign. Nicely Updated Northward 3 Bedroom, 2 Storey Family Home With MAIN FLOOR Professionally Finished STUDIO / IN-LAW APARTMENT on a spacious corner lot centrally located in Lindsay, close to schools, parks & amenities! Numerous Updates include Gorgeous Hardwood Floors and Hardwood Stairs, A 3-Season Sunroom with Entrance into the Apartment. Lots of Versatility in this spacious home to suit all your Family's Needs; Use this finished Main Floor Space as either an awesome Sunken Family Room or Main Floor Primary Bedroom Suite or Guest Bedroom! This Home Features Newer Windows, Roof'23, Soffits, Eaves & Upgraded Plank Vinyl Siding'24, Furnace'19, Self-Contained Apartment that was finished (with permits) in the Double Car Garage & includes a Kitchen, Family Room/ Bedroom Area, 3pc Bathroom With Walk-in Shower, Storage Area & Separate Entrance. (See Att'd Floor Plans). This Bright & Sunny Home is great for entertaining with the combined Living & Dining Room, the Spacious Kitchen with movable Island. Bonus Pantry/Coffee Bar that is conveniently located in the hallway that leads to the 2pc Bath & Rear Door to the backyard. This well-appointed Kitchen also has a Sliding Patio Door to the Sideyard Deck with Gazebo allowing for comfortable Alfresco Dining in the warmer weather. Or enjoy the Sunshine in the Cozy 3 Season Enclosed Porch. The 2nd Floor is graced with 3 spacious Bedrooms, upgraded Barn Closet Doors, Newer Berber Carpet throughout & Updated 4pc Bath. The Primary Bedroom has a 3pc Ensuite Bath & Huge Walk-in Closet. There is also Additional Family Space in the Finished Basement allowing for a comfy Rec Room for family games & movie night, with built-in closets & lots of storage space, PLUS a separate office space or craft/playroom with large closets. Finally the Utility Room with Laundry, more cabinets, Laundry Sink & Sump Pump .Lots of Parking to accommodate Tenants. This property allows for several private outdoor patio areas. Great Family Home in a Great Community! (id:27476)

Property Highlights

MLS® Number
X12829796
Type
Single Family
Community Name
Lindsay
Ownership Type
Freehold
Land Size
54.1 x 101.8 FT
Parking Space Total
3

Building

Building Type
House
Storeys
2.00
Square Footage
1500 - 2000 sqft
Bathrooms Total
4
Bedrooms Above Ground
4
Bedrooms Total
4
Amenities
Canopy Public Transit, Place of Worship, Park, Schools
Exterior Finish
Brick Facing, Vinyl siding
Fireplace Present
No
Basement Type
Full (Finished)
Basement Features
Building Heating Type
Forced air
Heating Fuel
Natural gas
Building Cooling Type
Central air conditioning

Utilities

Water
Municipal water
Utility Sewer
Sanitary sewer

Room Layout

Bedroom 2
Second level
3.15 m x 3.01 m
Bedroom 3
Second level
3.76 m x 3.01 m
Bathroom
Second level
2.01 m x 2.39 m
Primary Bedroom
Second level
4.81 m x 3.38 m
Recreational, Games room
Basement
5.08 m x 2.49 m
Office
Basement
3.25 m x 2.62 m
Utility room
Basement
3.25 m x 2.62 m
Living room
Main level
4.63 m x 3.02 m
Dining room
Main level
2.14 m x 3.02 m
Kitchen
Main level
2.94 m x 2.44 m
Eating area
Main level
2.79 m x 3.17 m
Pantry
Main level
1.67 m x 1.53 m
Bathroom
Main level
1.4 m x 1.48 m
Family room
Main level
6.09 m x 7.32 m
Kitchen
Main level
2.9 m x 3.09 m
Foyer
Main level
2.01 m x 2.01 m

Location

Learn more about this property
Listing provided by:
REVEL REALTY INC.
MLS® number:
X12829796
Agent:
Karen Fretz
*Indicates required field
Name is required
Email is required
Please enter a valid phone number (e.g., 416-111-1111).