49 Goodman Road, Kawartha Lakes, Ontario K0M 1N0

Listed for:
$749,900
3 beds
2 baths
Listed 6 days ago
House for rent: 49 Goodman Road, Kawartha Lakes, Ontario K0M 1N0

View all 30 photos

About

HIGHWAY 35 TO BAKER ROAD Well-maintained 3 bedroom, 2 bathroom bungalow located approximately 400 feet from Balsam Lake in the Fenelon Falls area. Built in 1988, the home offers 1,781 sq ft of living space with vaulted ceilings featuring 12-foot peaks in the main living area. The living room includes a propane fireplace and large windows providing good natural light. The kitchen features stainless steel appliances, a central island, and updated finishes, with hardwood flooring through the main living areas. Additional features include a steel tile roof, new window blinds, and an attached 20' x 20' (2 car) garage with interior access. The property also includes an interlock walkway and patio within a landscaped setting. Conveniently located just minutes from Fenelon Falls, marinas, golf, and the Trent-Severn Waterway. (id:27476)

Property Highlights

MLS® Number
X12861956
Type
Single Family
Community Name
Fenelon Falls
Ownership Type
Freehold
Land Size
100 x 120 FT|under 1/2 acre
Parking Space Total
8

Building

Building Type
House
Storeys
1.00
Square Footage
1500 - 2000 sqft
Bathrooms Total
2
Bedrooms Above Ground
3
Bedrooms Total
3
Amenities
Fireplace(s)
Exterior Finish
Brick
Fireplace Present
Yes
Basement Type
Full (Unfinished)
Basement Features
Building Heating Type
Forced air
Heating Fuel
Propane
Building Cooling Type
Central air conditioning

Utilities

Water
Drilled Well
Utility Sewer
Septic System

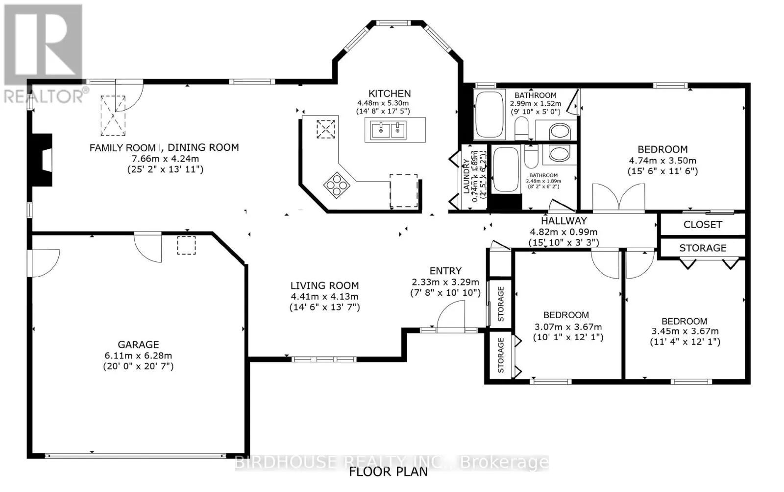
Room Layout

Foyer
Main level
2.33 m x 3.29 m
Bedroom
Main level
3.45 m x 3.67 m
Living room
Main level
4.41 m x 4.13 m
Other
Main level
6.11 m x 6.28 m
Family room
Main level
7.66 m x 4.24 m
Kitchen
Main level
4.48 m x 5.3 m
Laundry room
Main level
0.74 m x 1.89 m
Bathroom
Main level
2.99 m x 1.52 m
Bathroom
Main level
2.48 m x 1.89 m
Bedroom
Main level
4.74 m x 3.5 m
Bedroom
Main level
3.07 m x 3.67 m

Location

Learn more about this property
Listing provided by:
BIRDHOUSE REALTY INC.
MLS® number:
X12861956
Agent:
Patrick Lynch
*Indicates required field
Name is required
Email is required
Please enter a valid phone number (e.g., 416-111-1111).