199 Elgin Street, Kawartha Lakes, Ontario K9V 6B1

Listed for:
$599,900
3 beds
2 baths
Listed 7 days ago
House for rent: 199 Elgin Street, Kawartha Lakes, Ontario K9V 6B1

View all 40 photos

About

Cross Streets: Angeline N/Elgin Street. ** Directions: Angeline St N to Elgin Street. Fantastic location, large 48' x 107' fenced in-town lot, outdoor firepit & newer deck. Attached garage features an epoxy floor & automatic WiFi opener. Inside is beautiful and fully updated! Fantastic features such as main floor laundry room, 2pc bath & woodburning fireplace in living room. Updated kitchen cabinets, butcher block countertops & stainless-steel appliances (5 years old). Upstairs features spacious master bedroom, 2 additional bedrooms & 4pc bath. Bonus finished basement with large rec room & ample storage room. Move-in ready! Mechanical info: furnace (2017), AC (2002) & hot water tank (2013), 100amp breaker panel. Average monthly utility costs: $115 hydro, $97 gas & $150 water/sewer. (id:27476)

Property Highlights

MLS® Number
X12925630
Type
Single Family
Community Name
Lindsay
Ownership Type
Freehold
Land Size
48.8 x 107.1 FT|under 1/2 acre
Parking Space Total
3

Building

Building Type
House
Storeys
2.00
Square Footage
1100 - 1500 sqft
Bathrooms Total
2
Bedrooms Above Ground
3
Bedrooms Total
3
Amenities
Fireplace(s) Golf Nearby, Hospital, Park
Exterior Finish
Brick, Vinyl siding
Fireplace Present
Yes
Basement Type
Full (Finished)
Basement Features
Building Heating Type
Forced air
Heating Fuel
Natural gas
Building Cooling Type
Central air conditioning

Utilities

Water
Municipal water
Utility Sewer
Sanitary sewer

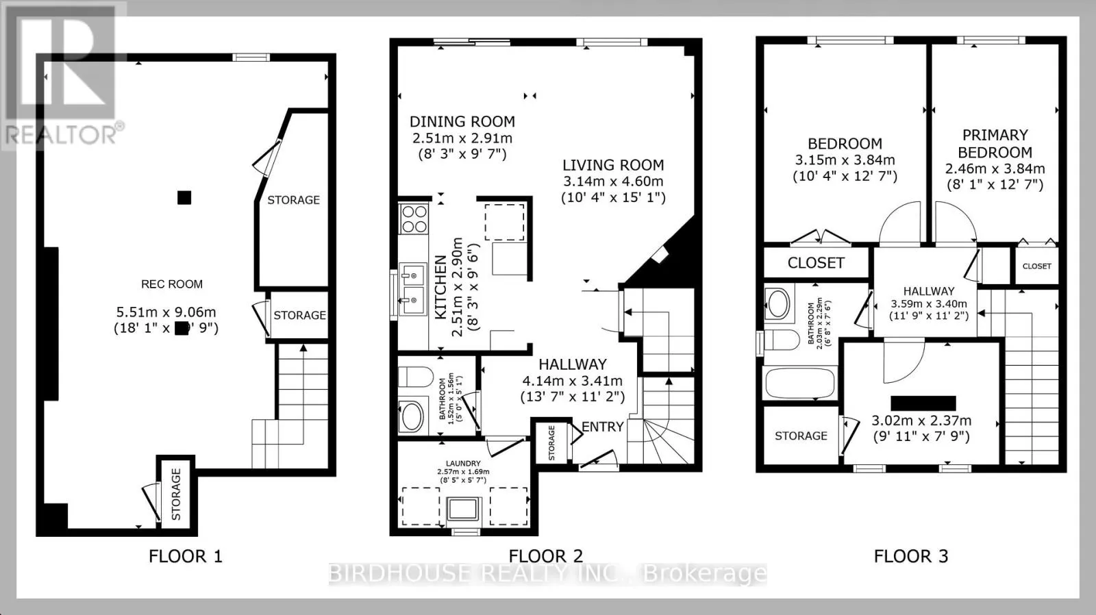
Room Layout

Bedroom
Second level
3.02 m x 2.37 m
Bathroom
Second level
2.03 m x 2.29 m
Bedroom
Second level
3.15 m x 3.84 m
Primary Bedroom
Second level
2.46 m x 3.84 m
Recreational, Games room
Lower level
5.51 m x 9.06 m
Laundry room
Main level
2.57 m x 1.69 m
Bathroom
Main level
1.52 m x 1.56 m
Kitchen
Main level
2.51 m x 2.9 m
Dining room
Main level
2.51 m x 2.91 m
Living room
Main level
3.14 m x 4.6 m

Location

Learn more about this property
Listing provided by:
BIRDHOUSE REALTY INC.
MLS® number:
X12925630
Agent:
Keith Mcdonald
*Indicates required field
Name is required
Email is required
Please enter a valid phone number (e.g., 416-111-1111).