2311 Elm Tree Road, Kawartha Lakes, Ontario K0M 1E0

Listed for:
$449,750
0 beds
0 baths
Listed 22 days ago
Offices for rent: 2311 Elm Tree Road, Kawartha Lakes, Ontario K0M 1E0

View all 41 photos

About

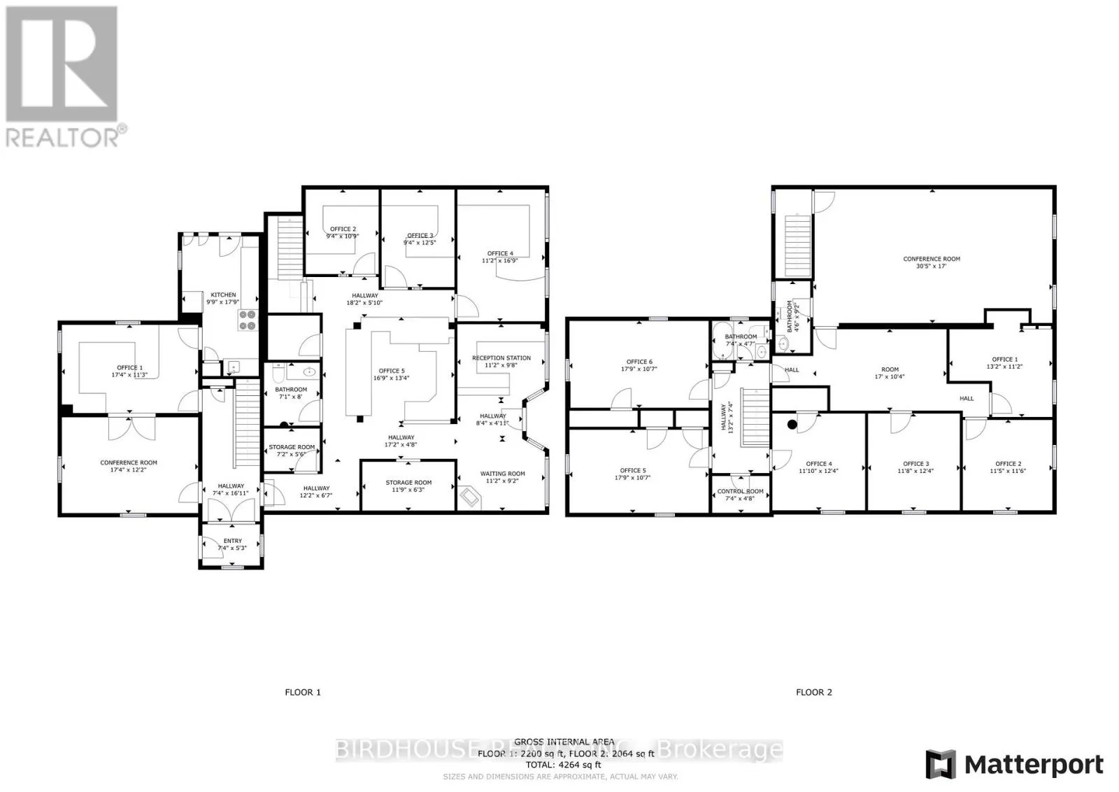
Elm Tree Rd & Cambray Rd A well-maintained & updated 4458 square foot two-story brick building in Cambray. Located in Cambray at the busy junction of Elm Tree Rd & Highway 9, just minutes outside Lindsay & under an hour to Peterborough & Port Perry. Large spacious corner lot (0.41 acres) with room for additional buildings & parking. Currently used as a large office building. Commercial & residential uses permitted. Rear part of the building is already setup for a 3 bedroom 1 bathroom with kitchen living quarters for a business owner. The building could also be split into two separate office spaces with separate entrances, hydro & HVAC systems. Bonus detached 20'x 28' double garage with concrete floor. Commercial (C1) zoning allows for residential use of part of the building along with numerous alternative uses including but not limited to retail sales, health centre, commercial school, business or professional offices, restaurant, upholstering & furniture repair. Numerous updates in the last 10 years, including windows (2017), HVAC (2018), attic insulation (2021) & office renovation (2016). So much potential! (id:27476)

Property Highlights

MLS® Number
X12947096
Type
Office
Community Name
Fenelon
Land Size
84 x 196.23 FT

Building

Building Type
Offices
Square Footage
4458 sqft
Fireplace Present
No
Basement Type
Basement Features
Building Heating Type
Heating Fuel
Building Cooling Type
Fully air conditioned

Utilities

Water
Cistern
Utility Sewer
Septic System

Location

Learn more about this property
Listing provided by:
BIRDHOUSE REALTY INC.
MLS® number:
X12947096
Agent:
Keith Mcdonald
*Indicates required field
Name is required
Email is required
Please enter a valid phone number (e.g., 416-111-1111).