1411 Portage Road, Kawartha Lakes, Ontario K0M 2B0

Listed for:
$249,000
0 beds
0 baths
Listed 6 days ago
1411 Portage Road, Kawartha Lakes, Ontario K0M 2B0

View all 35 photos

About

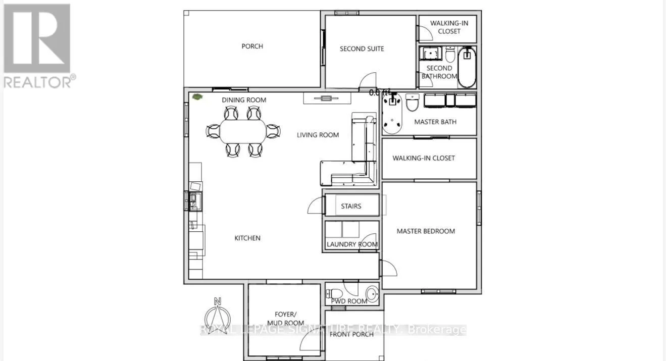
Cross Streets: Portage Rd. & Brotherston Gate. ** Directions: On Portage Rd (Hwy48). Indirect Waterfront Large Lot ! "New Large Entrance & Parking Area Completed!" In Peaceful Kirkfield, On Hwy 48 A Big Corner "Residential Zoning Lot 1.40 Acres". Sellers Are Builders And Can Build The Example Drawing Or Another Custom Design Up On Request. 1 Hr 45 Min's From D. Town Toronto, Right South of St. Mitchell, East Of Canal, Minutes To Balsam Lake & Historical Kirkfield Lift-Lock With Picnic Area Boating/Hiking All Kind In Nature & Water Entertainment's. The Trailer In The Images Is Included In The Sale Price. (id:27476)

Property Highlights

MLS® Number
X12984936
Type
Vacant Land
Community Name
Carden
Land Size
140.54 x 444.68 FT|1/2 - 1.99 acres

Building

Amenities
Beach, Golf Nearby, Marina
Fireplace Present
No
Basement Type
Basement Features
Building Heating Type
Heating Fuel
Building Cooling Type

Location

Learn more about this property
Listing provided by:
ROYAL LEPAGE SIGNATURE REALTY
MLS® number:
X12984936
Agent:
Sarven Gul
*Indicates required field
Name is required
Email is required
Please enter a valid phone number (e.g., 416-111-1111).