390 Main Street, King, Ontario L0G 1T0

Listed for:
$1,950,000
7 beds
5 baths
Listed 41 days ago
House for rent: 390 Main Street, King, Ontario L0G 1T0

View all 49 photos

Learn more about this property
Listing provided by:
RE/MAX HALLMARK YORK GROUP REALTY LTD.
MLS® number:
N12445620
Agent:
Julianne Brenda Boileau
*Indicates required field
Name is required
Email is required
Please enter a valid phone number (e.g., 416-111-1111).

About

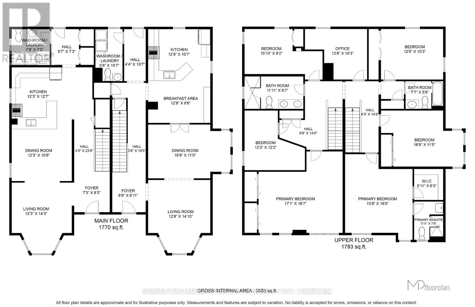
Cross Streets: Hwy 27/Hwy 9. ** Directions: HWY 27 TO MAIN STREET. MUST BE SEEN! Wonderfully decorated and updated throughout, just the right touch of modern and charming. Great opportunity for extended family or investment, live in one half and rent the other half. TWO...main floor Kitchens, living rooms, dining rooms, 2 Main floor laundry rooms, and seven bedrooms upstairs! Majestic over one-acre manicured lot with large Eating and Entertaining area/Patio and gardens, lot backs onto protected land No homes behind! Walk to quaint shops, restaurants/patios on Historic Main Street. The home is currently being used as a single-family dwelling; however, it can easily be used as two separate homes with two front and back entrances. Many Possibilities. (id:27476)

Property Highlights

MLS® Number
N12445620
Type
Single Family
Community Name
Schomberg
Ownership Type
Freehold
Land Size
93.7 x 538 FT
Parking Space Total
18

Building

Building Type
House
Storeys
2.00
Square Footage
3500 - 5000 sqft
Bathrooms Total
5
Bedrooms Above Ground
7
Bedrooms Total
7
Amenities
Park, Place of Worship
Exterior Finish
Brick, Stone
Fireplace Present
No
Basement Type
N/A (Unfinished)
Basement Features
Building Heating Type
Radiant heat
Heating Fuel
Other
Building Cooling Type
Window air conditioner

Utilities

Water
Municipal water
Utility Sewer
Sanitary sewer

Room Layout

Primary Bedroom
Second level
5.06 m x 4.17 m
Primary Bedroom
Second level
4.06 m x 5.21 m
Bedroom 2
Second level
3.71 m x 3.64 m
Bedroom 3
Second level
4.9 m x 2.84 m
Bedroom 4
Second level
3.25 m x 3.8 m
Bedroom 5
Second level
3.3 m x 3.9 m
Bedroom
Second level
5.04 m x 3.38 m
Kitchen
Main level
3.73 m x 5.09 m
Kitchen
Main level
5.75 m x 3.88 m
Dining room
Main level
5.22 m x 3.31 m
Dining room
Main level
3.8 m x 3.82 m
Living room
Main level
4.36 m x 3.75 m
Laundry room
Main level
2 m x 3.38 m

Location