51 Spring Hill Drive, King, Ontario L7B 0B4

Listed for:
$3,900
3 beds
3 baths
Listed 37 days ago
Row / Townhouse for rent: 51 Spring Hill Drive, King, Ontario L7B 0B4

View all 6 photos

Learn more about this property
Listing provided by:
RE/MAX HALLMARK YORK GROUP REALTY LTD.
MLS® number:
N12571606
Agent:
Julianne Brenda Boileau
*Indicates required field
Name is required
Email is required
Please enter a valid phone number (e.g., 416-111-1111).

About

Cross Streets: King Side Road/Dufferin. ** Directions: King Side Road to Spring Hill. Location Location Location! Large 1824sq ft Townhome, linked only by the Garage in the Heart of King City, Laundry room on bedroom level, Fully fenced, walk to Starbucks, Schools, Coppa's Grocery Lcbo, Fine Dining and more, min to Hwy 400, and Go Station. (id:27476)

Property Highlights

MLS® Number
N12571606
Type
Single Family
Community Name
King City
Ownership Type
Freehold
Land Size
25 FT
Parking Space Total
3

Building

Building Type
Row / Townhouse
Storeys
2.00
Square Footage
1500 - 2000 sqft
Bathrooms Total
3
Bedrooms Above Ground
3
Bedrooms Total
3
Amenities
Fireplace(s)
Exterior Finish
Brick, Stone
Fireplace Present
Yes
Basement Type
N/A (Unfinished)
Basement Features
Building Heating Type
Forced air
Heating Fuel
Natural gas
Building Cooling Type
Central air conditioning

Utilities

Water
Municipal water
Utility Sewer
Sanitary sewer

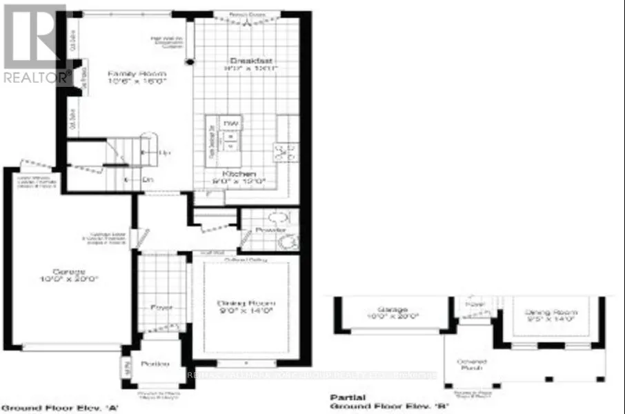
Room Layout

Primary Bedroom
Second level
3.84 m x 4.93 m
Bedroom 2
Second level
2.77 m x 4.26 m
Bedroom 3
Second level
3.01 m x 3.16 m
Kitchen
Main level
2.74 m x 3.65 m
Eating area
Main level
2.74 m x 3.96 m
Family room
Main level
3.23 m x 4.87 m
Dining room
Main level
2.74 m x 4.26 m

Location