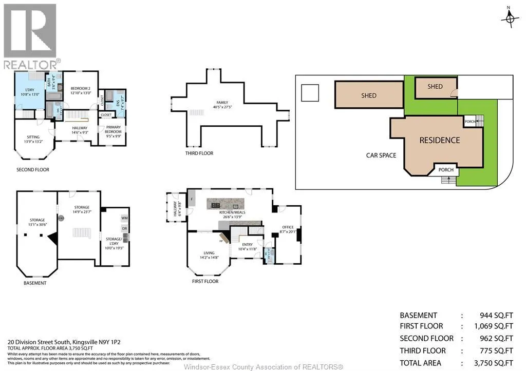
20 Division Street South, Kingsville, Ontario N9Y 1P2

Listed for:
$999,999
0 beds
0 baths
Listed 2 days ago
House for rent: 20 Division Street South, Kingsville, Ontario N9Y 1P2

View all 48 photos

Learn more about this property
Listing provided by:
CENTURY 21 LOCAL HOME TEAM REALTY INC.
MLS® number:
25021837
Agent:
Stacey Jones
*Indicates required field
Name is required
Email is required
Please enter a valid phone number (e.g., 416-111-1111).

About

Corner of Division and Pearl It's time to re-imagine 20 Division St in Kingsville! This beautifully restored early 1900s property offers an incredible blend of historical charm and modern amenities, perfect for both residential and business use. On site parking and zoned C2, this versatile space is ideal for offices, a wellness centre, medical aesthetics, or boutique retail, providing endless possibilities for creative entrepreneurs. Inside, the original woodwork and trim in the main living area showcase the home’s classic craftsmanship, while the fully renovated kitchen offers an updated, luxurious feel. Each of the 3 spacious bedrooms boasts its own full ensuite, making it perfect for private offices or consultation rooms. The attic space boasts vaulted ceilings with roughed in plumbing for future use! Accessory building offers further use with (100 amp) hydro and roughed in plumbing. Whether you’re looking for a charming residence or a unique business location, this property delivers on both fronts. (id:27476)

Property Highlights

MLS® Number
25021837
Type
Industrial
Ownership Type
Freehold
Land Size
64.51 X irreg

Building

Building Type
House
Square Footage
2200 sqft
Fireplace Present
No
Basement Type
Basement Features
Building Heating Type
Forced air, Furnace
Heating Fuel
Natural gas
Building Cooling Type
Air Conditioned, Central air conditioning

Location