40 Remark Drive, Kingsville, Ontario N9Y 3X6

Listed for:
$385,000
2 beds
1 baths
Listed 13 days ago
Row / Townhouse for rent: 40 Remark Drive, Kingsville, Ontario N9Y 3X6

View all 37 photos

About

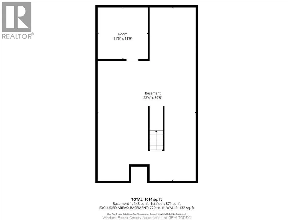
Turn north off Main Street onto Remark Drive. Welcome to 40 Remark Drive, a charming townhouse with NO COMMON FEES located on a quiet street in the heart of Kingsville, offering great curb appeal and a layout ideal for first-time buyers or down-sizers. Step inside to a bright and inviting main floor space featuring a comfortable living room, a dedicated dining area, and a functional kitchen at the heart of the home. On the main floor, you'll find two well-sized bedrooms, providing comfortable and practical living space and a convenient 4-piece bathroom that completes this level. The unfinished basement offers excellent storage and future equity potential. Recent updates include laminate flooring throughout and a new roof in 2020, offering added peace of mind. Don't miss the opportunity to call this low maintenance property your next home. Contact our team today to arrange a private showing!! (id:27476)

Property Highlights

MLS® Number
26002987
Type
Single Family
Ownership Type
Freehold
Land Size
22.33 X 130 FT / 0.07 AC

Building

Building Type
Row / Townhouse
Storeys
1.00
Bathrooms Total
1
Bedrooms Above Ground
2
Bedrooms Total
2
Exterior Finish
Brick
Fireplace Present
No
Basement Type
Basement Features
Building Heating Type
Forced air, Furnace
Heating Fuel
Natural gas
Building Cooling Type

Location

Learn more about this property
Listing provided by:
JUMP REALTY INC.
MLS® number:
26002987
Agent:
Tyler Knight
*Indicates required field
Name is required
Email is required
Please enter a valid phone number (e.g., 416-111-1111).