290 Erieview Drive, Kingsville, Ontario N9Y 1M4

Listed for:
$461,900
2 beds
1 baths
Listed 3 days ago
House for rent: 290 Erieview Drive, Kingsville, Ontario N9Y 1M4

View all 3 photos

About

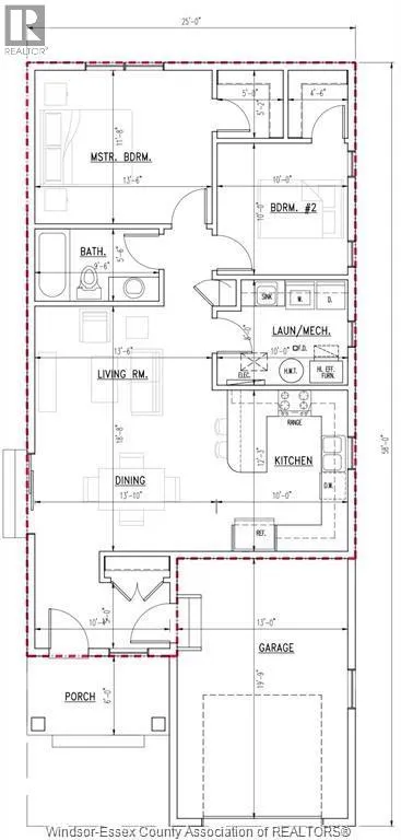
This brand-new bungalow is the perfect opportunity to become a homeowner. Thoughtfully designed, it offers 2 spacious bedrooms-each with its own walk-in closet, a bright full bath, and a functional layout that combines comfort and style. The kitchen with eating area flows into the inviting living room, creating the ideal space for both everyday living and entertaining. With a main-floor laundry room and an attached single-car garage for added storage and parking, this home offers everyday convenience. Built with quality craftsmanship and backed by a Tarion New Home Warranty, this home ensures peace of mind while you enjoy the benefits of ownership. Don't miss your chance to own a brand-new home tailored for easy, comfortable living! List price reflects full HST savings based on qualification under current and proposed 2026 Ontario tax relief. (id:27476)

Property Highlights

MLS® Number
26007934
Type
Single Family
Ownership Type
Freehold
Land Size
35 X 101 FT

Building

Building Type
House
Storeys
1.00
Bathrooms Total
1
Bedrooms Above Ground
2
Bedrooms Total
2
Exterior Finish
Aluminum/Vinyl
Fireplace Present
No
Basement Type
Basement Features
Building Heating Type
Forced air, Furnace
Heating Fuel
Natural gas
Building Cooling Type
Central air conditioning

Location

Learn more about this property
Listing provided by:
DEERBROOK REALTY INC.
MLS® number:
26007934
Agent:
Yolla Abraham
*Indicates required field
Name is required
Email is required
Please enter a valid phone number (e.g., 416-111-1111).