1154 Queens Boulevard, Kitchener, Ontario N2M 1C2

Listed for:
$1,190,000
4 beds
3 baths
Listed 26 days ago
House for rent: 1154 Queens Boulevard, Kitchener, Ontario N2M 1C2

View all 9 photos

Learn more about this property
Listing provided by:
ROYAL LEPAGE WOLLE REALTY
MLS® number:
40782014
Agent:
Ana Mladineo
*Indicates required field
Name is required
Email is required
Please enter a valid phone number (e.g., 416-111-1111).

About

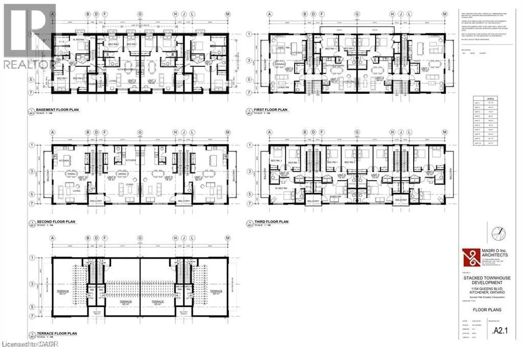
Queens Blvd & Blueridge Ave Attention all developers. Unique opportunity for this 65 ft x 280 ft lot.The property is Site Plan approved for 10 Unit Stack Townhomes with 15 Parking spots. Central location close to Downtown Kitchener ,St. Mary's hospital, shopping, schools and many other amenties. Included in the price: Architectural Drawings, Structural Framing Drawings, Landscape drawings, Topographic Survey, Boundary Survey, Servicing Drawings, Electrical Drawings, Mechanical Drawings, Geotechnical Report, Environmental study Phase 1,Landscape Plan, Legal Survey and Topographic Survey. (id:27476)

Property Highlights

MLS® Number
40782014
Type
Single Family
Ownership Type
Freehold
Land Size
under 1/2 acre
Parking Space Total
7

Building

Building Type
House
Storeys
1.50
Square Footage
2934 sqft
Bathrooms Total
3
Bedrooms Above Ground
3
Bedrooms Total
4
Amenities
Hospital, Park, Public Transit, Schools
Exterior Finish
Brick, Metal
Fireplace Present
No
Basement Type
Full (Finished)
Basement Features
Building Heating Type
Forced air
Heating Fuel
Natural gas
Building Cooling Type
Central air conditioning

Utilities

Water
Municipal water
Utility Sewer
Municipal sewage system

Room Layout

3pc Bathroom
Second level
Measurements not available
Bedroom
Second level
16'6'' x 19'10''
Bedroom
Second level
7'5'' x 12'0''
Foyer
Second level
13'1'' x 9'4''
Storage
Basement
7'4'' x 32'2''
Utility room
Basement
12'10'' x 18'2''
3pc Bathroom
Basement
Measurements not available
Recreation room
Basement
11'9'' x 15'1''
Bedroom
Basement
9'1'' x 11'10''
Den
Basement
11'0'' x 12'1''
Kitchen
Main level
13'0'' x 17'1''
Bedroom
Main level
9'0'' x 10'3''
Den
Main level
7'5'' x 5'0''
4pc Bathroom
Main level
Measurements not available
Living room
Main level
13'3'' x 18'10''
Foyer
Main level
5'0'' x 12'9''

Location

Street Spotlight - For sale