439 Alice Avenue, Kitchener, Ontario N2M 2A3

Listed for:
$549,900
0 beds
0 baths
Listed 108 days ago
439 Alice Avenue, Kitchener, Ontario N2M 2A3

View all 17 photos

About

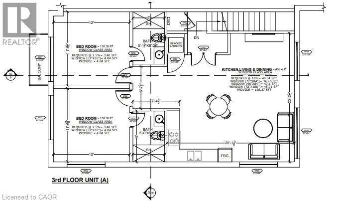
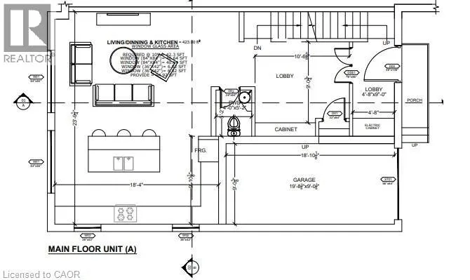
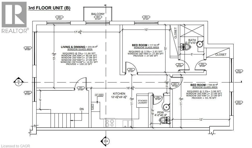
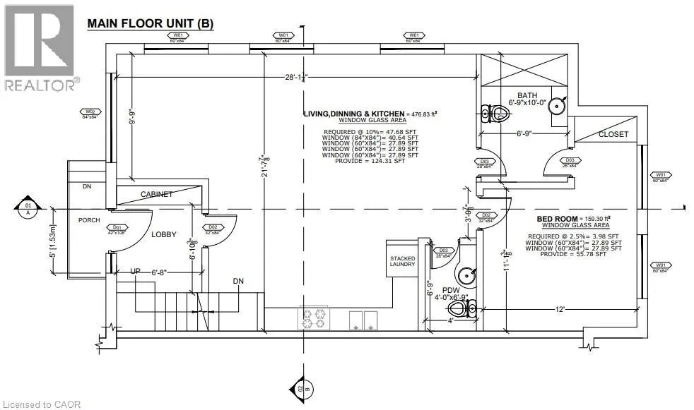
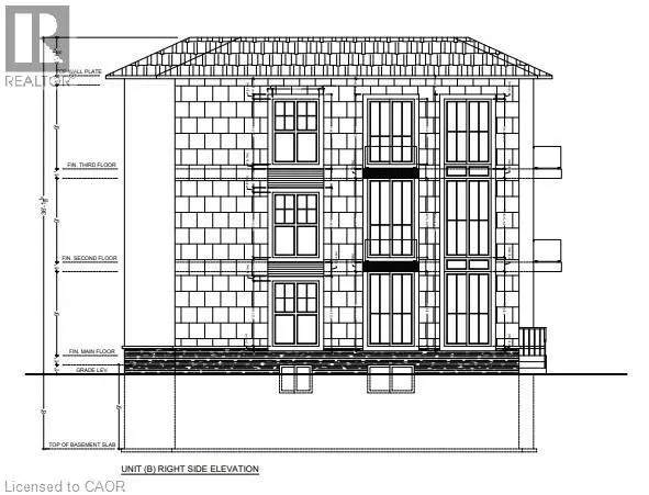
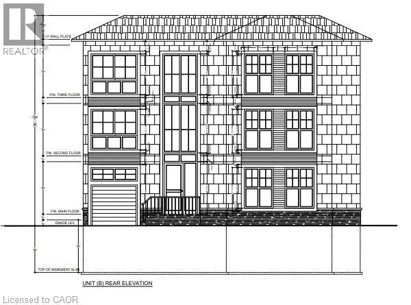
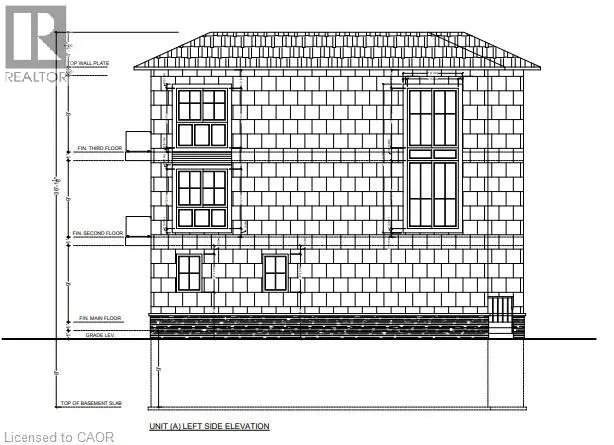
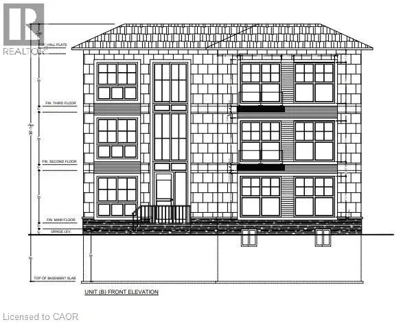
WESTMOUNT RD - KARN ST - ALICE AVENUE Approved by the City of Kitchener. Attention developers and investors! 6 units possible here. Redevelopment site for 2 triplex's (built as 2 x semi-detached with 3 units in each – see photo gallery for conceptual rendering). Plans attached as supplement documents. Existing structure is best to be ripped down. This property is brimming with potential—pre-approved by the City of Kitchener for a triplex redevelopment. Situated on a large lot in the heart of Kitchener. The existing home currently offers 3 bedrooms and 1 bathroom, providing a solid foundation for renovation or expansion. Conveniently located near public transit, the LRT, Google, Victoria Park, shopping, and other key amenities, this property presents an incredible opportunity for those looking to invest or undertake a full home renovation. (id:27476)

Property Highlights

MLS® Number
40784470
Type
Vacant Land
Ownership Type
Freehold
Land Size
under 1/2 acre

Building

Amenities
Hospital
Fireplace Present
No
Basement Type
None
Basement Features
Building Heating Type
Heating Fuel
Building Cooling Type

Utilities

Water
Municipal water
Utility Sewer
Municipal sewage system

Location

Learn more about this property
Listing provided by:
RE/MAX TWIN CITY REALTY INC.
MLS® number:
40784470
Agent:
Tony Johal
*Indicates required field
Name is required
Email is required
Please enter a valid phone number (e.g., 416-111-1111).