439 Alice Avenue, Kitchener, Ontario N2M 2A3

Listed for:
$649,900
3 beds
1 baths
Listed 22 days ago
House for rent: 439 Alice Avenue, Kitchener, Ontario N2M 2A3

View all 20 photos

Learn more about this property
Listing provided by:
RE/MAX TWIN CITY REALTY INC.
MLS® number:
X12493124
Agent:
Tony Johal
*Indicates required field
Name is required
Email is required
Please enter a valid phone number (e.g., 416-111-1111).

About

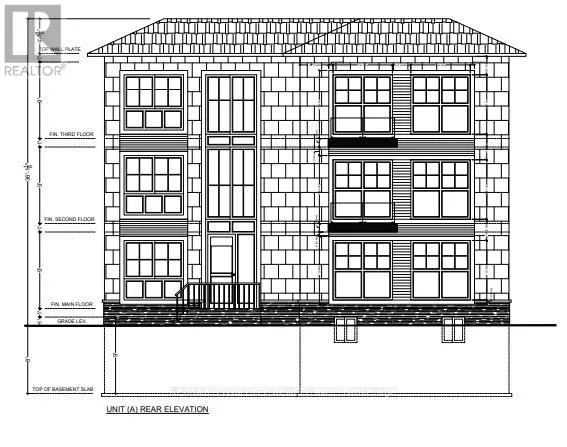
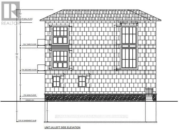
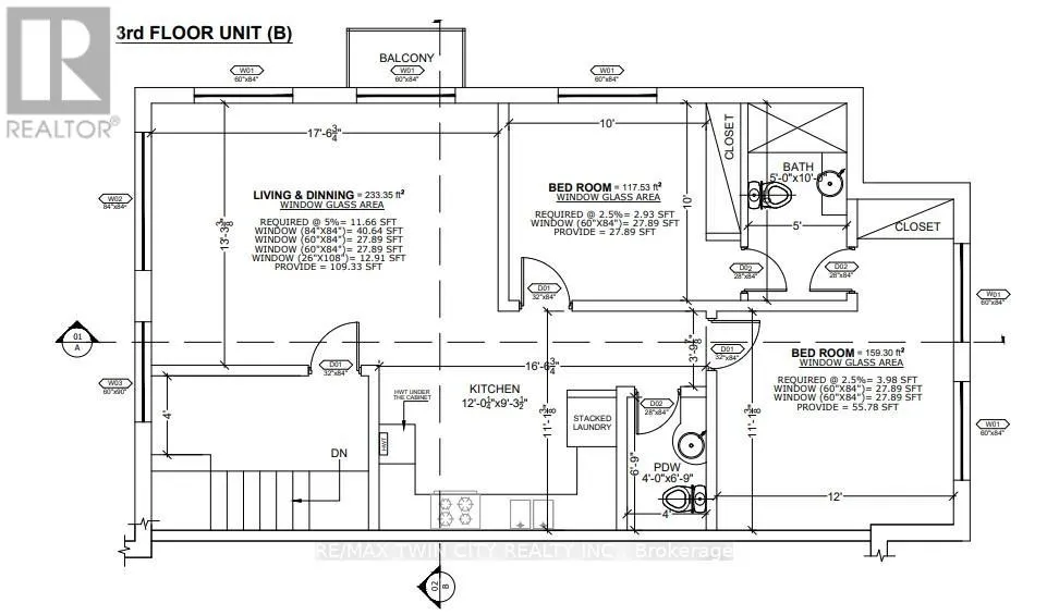
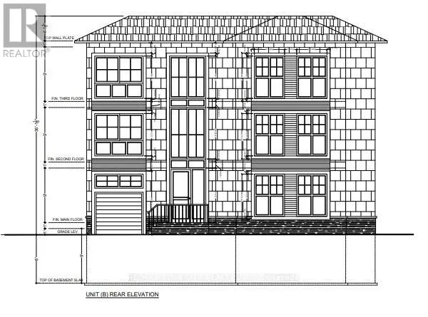
ESTMOUNT RD - KARN ST - ALICE AVENUE Approved by the City of Kitchener. Attention developers and investors! 6 units possible here. Redevelopment site for 2 triplex's (built as 2 x semi-detached with 3 units in each - see photo gallery for conceptual rendering). Plans attached as supplement documents. Existing structure is best to be ripped down. This property is brimming with potential-pre-approved by the City of Kitchener for a triplex redevelopment. Situated on a large lot in the heart of Kitchener. The existing home currently offers 3 bedrooms and 1 bathroom, providing a solid foundation for renovation or expansion. Conveniently located near public transit, the LRT, Google, Victoria Park, shopping, and other key amenities, this property presents an incredible opportunity for those looking to invest or undertake a full home renovation. (id:27476)

Property Highlights

MLS® Number
X12493124
Type
Single Family
Ownership Type
Freehold
Land Size
55.3 FT
Parking Space Total
3

Building

Building Type
House
Storeys
2.00
Square Footage
700 - 1100 sqft
Bathrooms Total
1
Bedrooms Above Ground
3
Bedrooms Total
3
Exterior Finish
Vinyl siding
Fireplace Present
No
Basement Type
N/A (Unfinished)
Basement Features
Building Heating Type
Other, Not known
Heating Fuel
Electric, Other
Building Cooling Type
None

Utilities

Water
Municipal water
Utility Sewer
Sanitary sewer

Location