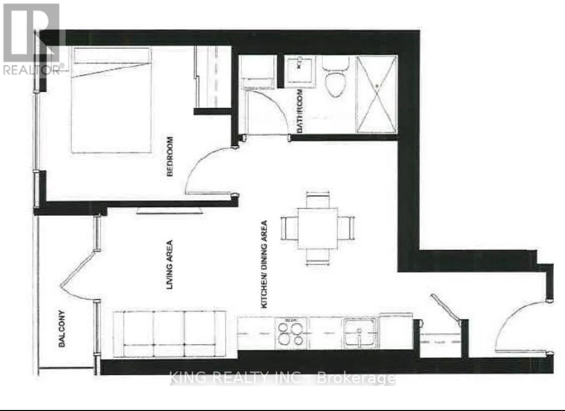
1105 - 60 Frederick Street, Kitchener, Ontario N2H 0C7

Listed for:
$1,799
1 beds
1 baths
Listed 9 days ago
Apartment for rent: 1105 - 60 Frederick Street, Kitchener, Ontario N2H 0C7

View all 6 photos

Learn more about this property
Listing provided by:
KING REALTY INC.
MLS® number:
X12516746
Agent:
Sahil Sharma
*Indicates required field
Name is required
Email is required
Please enter a valid phone number (e.g., 416-111-1111).

About

Duke St / Federick St 1 bedroom condo in downtown Kitchener. 11th floor unit in Duke Tower Kitchener available for rent starting in November. A stylish 1-bedroom, 1-bathroom condo, Duke Tower is Kitchener's tallest and most iconic high-rise. This modern unit offers breathtaking views of the Waterloo Region and is just steps from the LRT, Conestoga College Downtown Campus, tech companies, restaurants, and shops. Designed for contemporary comfort, the condo features smart home technology including a digital door lock, smart thermostat, and art lighting, along with engineered hardwood floors and a sleek, modern kitchen. Residents enjoy access to premium amenities such as a 24-hour concierge, fitness and yoga studios, meeting and party rooms, a rooftop terrace, bicycle storage, a car share program, and EV charging. Perfect for young professionals or students, this unit combines convenience, luxury, and connectivity in the heart of the city. (id:27476)

Property Highlights

MLS® Number
X12516746
Type
Single Family
Ownership Type
Condominium/Strata

Building

Building Type
Apartment
Square Footage
0 - 499 sqft
Bathrooms Total
1
Bedrooms Above Ground
1
Bedrooms Total
1
Amenities
Security/Concierge, Exercise Centre, Party Room, Storage - Locker Park, Public Transit, Schools
Fireplace Present
Yes
Basement Type
None
Basement Features
Building Heating Type
Forced air
Heating Fuel
Natural gas
Building Cooling Type
Central air conditioning

Location

Street Spotlight - For rent