128 Carlyle Drive Unit# Lower, Kitchener, Ontario N2P 1N6

Listed for:
$1,825
3 beds
1 baths
Listed 23 days ago
House for rent: 128 Carlyle Drive Unit# Lower, Kitchener, Ontario N2P 1N6

View all 21 photos

Learn more about this property
Listing provided by:
Platinum Lion Realty Inc.
MLS® number:
40792521
Agent:
Dylan Stewart
*Indicates required field
Name is required
Email is required
Please enter a valid phone number (e.g., 416-111-1111).

About

Biehn Dr to Carlyle Welcome to 128 CARLYLE Drive! This legal duplex is situated in the cozy and welcoming Pioneer Park neighbourhood. It's affordable, and utilities are INCLUDED. The lower-basement floor unit boasts 1,000 sq ft of living space, featuring 3 bedrooms, 1 bathroom, private laundry, separate parking, separate entrance, and a spacious backyard (shared 50 x 150.65 lot). It's a permitted and legal basement apartment, making it ideal for young professionals or families. Plus, the floor is fire and soundproofed for added safety and privacy. Located just minutes away from parks, schools, shopping, and all the essential amenities you need. Quiet family-friendly neighbourhood surrounded by 5 massive parks. Minutes to; Home Watson Blvd, Highway 401, Conestoga College, and public/cathlic Schools. *photos virtually staged (id:27476)

Property Highlights

MLS® Number
40792521
Type
Single Family
Ownership Type
Freehold
Land Size
under 1/2 acre
Parking Space Total
2

Building

Building Type
House
Storeys
1.00
Square Footage
2104 sqft
Bathrooms Total
1
Bedrooms Total
3
Amenities
Hospital, Park, Place of Worship, Public Transit, Schools
Exterior Finish
Aluminum siding, Brick, Vinyl siding
Fireplace Present
No
Basement Type
Full (Finished)
Basement Features
Building Heating Type
Forced air
Heating Fuel
Natural gas
Building Cooling Type
Central air conditioning

Utilities

Water
Municipal water
Utility Sewer
Municipal sewage system

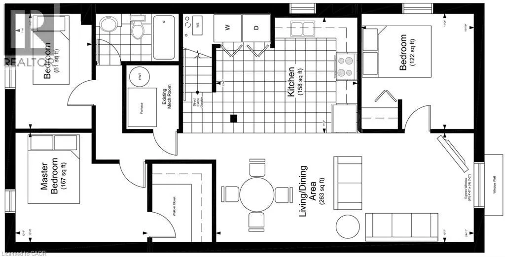
Room Layout

Foyer
Basement
3'0'' x 3'0''
Kitchen
Basement
13'8'' x 11'2''
Living room/Dining room
Basement
24'11'' x 10'7''
Laundry room
Basement
6'0'' x 3'0''
4pc Bathroom
Basement
8'0'' x 5'0''
Primary Bedroom
Basement
12'9'' x 10'7''
Bedroom
Basement
7'4'' x 11'2''
Bedroom
Basement
11'2'' x 10'10''

Location