1430 Highland Road W Unit# 7c, Kitchener, Ontario N2N 3K6

Listed for:
$2,150
2 beds
2 baths
Listed 60 days ago
Row / Townhouse for rent: 1430 Highland Road W Unit# 7c, Kitchener, Ontario N2N 3K6

View all 12 photos

About

IRA NEEDLES/HIGHLAND Beautiful 3-Level condo in the highly desirable Highland West neighbourhood of Kitchener! This modern and stylish 2-bed, 2-bath condo offers contemporary living with great convenience and upscale finishes in a vibrant community. Ideal for couples / roommates, a small family, or working professionals. Contact us today to see this rental unit! 2 Bedrooms 2 Bathrooms ( All new finishes) 6 Stainless Steel Appliances (Fridge, Dishwasher, Stove, Microwave, Washer & Dryer) Quartz Countertops In-unit Laundry Smart Ecobee Thermostat Central Heat & A/C New LED lighting throughout Ample Storage 2 Parking Spaces (Both underground - 1 Included, 2nd is additional $150.00 / month) 3 Balconies including Roof Top Terrace Natural Gas line for BBQ Open-concept living and dining area ideal for entertaining Fibre optic internet connection available Storage shed on the rooftop terrace for extra outdoor storage Shopping & Dining: Minutes from The Boardwalk Shopping Centre and a wide variety of restaurants, cafes, and services. Access to parks, walking trails, and greenspace nearby — perfect for outdoor activities and leisure. Transit & Commuting: Quick access to GRT transit routes and major highways including Highway 8 and the 401, making commuting a breeze. Nearby Schools & Amenities: Close to local schools, grocery stores, and community services ** Available NOW! ** *Non-Smoking Unit* *Tenant Insurance is Mandatory and Must be Provided on Move in Day* *Any Unit Listed by KWP That States All Inclusive Will Have a Cap Included* *See sales brochure below for showing instructions* (id:27476)

Property Highlights

MLS® Number
40794285
Type
Single Family
Ownership Type
Condominium
Land Size
Unknown
Parking Space Total
1

Building

Building Type
Row / Townhouse
Storeys
2.00
Square Footage
1412 sqft
Bathrooms Total
2
Bedrooms Above Ground
2
Bedrooms Total
2
Amenities
Public Transit
Exterior Finish
Brick, Stucco
Fireplace Present
No
Basement Type
None
Basement Features
Building Heating Type
Forced air
Heating Fuel
Natural gas
Building Cooling Type
Central air conditioning

Utilities

Water
Municipal water
Utility Sewer
Municipal sewage system

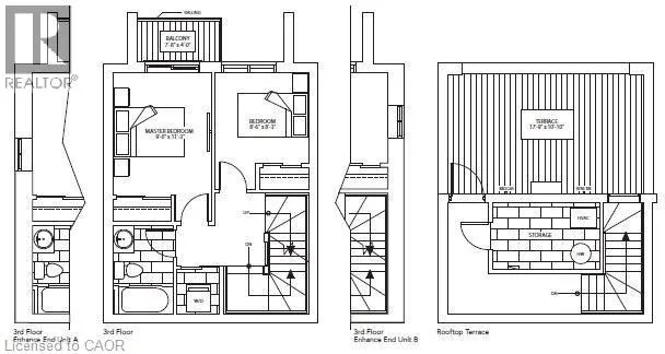
Room Layout

4pc Bathroom
Second level
Measurements not available
Bedroom
Second level
8'6'' x 8'3''
Primary Bedroom
Second level
11'3'' x 9'0''
2pc Bathroom
Main level
Measurements not available
Dining room
Main level
7'0'' x 6'10''
Kitchen
Main level
8'8'' x 7'7''
Living room
Main level
10'3'' x 8'11''

Location

Learn more about this property
Listing provided by:
Vancor Realty Inc.
MLS® number:
40794285
Agent:
Corry Christopher Van Iersel
*Indicates required field
Name is required
Email is required
Please enter a valid phone number (e.g., 416-111-1111).

Street Spotlight - For rent