3 - 2 Pipers Green Court, Kitchener, Ontario N2E 3C6

Listed for:
$2,100
2 beds
2 baths
Listed 5 days ago
Duplex for rent: 3 - 2 Pipers Green Court, Kitchener, Ontario N2E 3C6

View all 31 photos

About

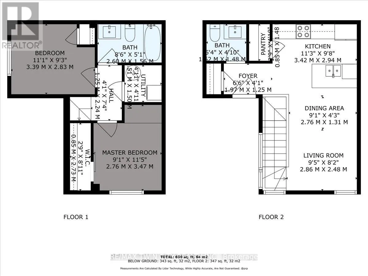
Cross Streets: Erinbrook Drive. ** Directions: Bleams to Thistledown, left onto Erinbrook. Driveway is on Erinbrook. Beautiful rental! This energy efficient and modern compact unit offers luxury finishes comparable to a custom home. At 860 square feet and offering 2 bedrooms, 1.5 bathrooms, this unit comes with large main floor windows, 9' ceilings and a wide open layout making for a bright space. The living room, kitchen, and powder room all occupy the main floor. The two-tone kitchen is a combination of a white oak finish with satin grey floor to ceiling cabinets and soft close mechanisms along with quartz countertops throughout the kitchen and bathrooms. Brand new stainless steel kitchen appliances and stackable laundry washer and dryer. The black hardware contrasts the white trim and matches the black plumbing fixtures throughout. LVP flooring in the entire unit matches the oak staircase and iron spindles leading to the basement. Two bedrooms; one with built in drawers, a laundry, and a four-piece bathroom make up the lower level. Conveniently Country Hill location! (id:27476)

Property Highlights

MLS® Number
X12772808
Type
Multi-family
Land Size
66.8 FT
Parking Space Total
1

Building

Building Type
Duplex
Storeys
2.00
Square Footage
0 - 699 sqft
Bathrooms Total
2
Bedrooms Above Ground
2
Bedrooms Total
2
Exterior Finish
Vinyl siding
Fireplace Present
No
Basement Type
N/A (Finished)
Basement Features
Building Heating Type
Forced air
Heating Fuel
Natural gas
Building Cooling Type
Central air conditioning

Utilities

Water
Municipal water
Utility Sewer
Sanitary sewer

Location

Learn more about this property
Listing provided by:
RE/MAX TWIN CITY REALTY INC.
MLS® number:
X12772808
Agent:
Emil Burca
*Indicates required field
Name is required
Email is required
Please enter a valid phone number (e.g., 416-111-1111).