352 Louisa Street, Kitchener, Ontario N2H 0B2

Listed for:
$2,600
3 beds
3 baths
Listed 5 days ago
Row / Townhouse for rent: 352 Louisa Street, Kitchener, Ontario N2H 0B2

View all 19 photos

About

Modern 3-Storey Townhouse Near Downtown Kitchener. Stylish and spacious 3-bedroom, 2.5-bathroom townhouse with an attached garage, ideally located within walking distance to Downtown Kitchener, the GO Station, and Grand River Hospital. This bright, open-concept home features high-end finishes throughout, including hardwood floors in the main living areas, carpeted bedrooms and stairs, and ceramic tile in the bathrooms. The gorgeous kitchen offers ample counter space, granite countertops, stainless steel appliances, and walkout access to a private patio—perfect for relaxing or entertaining (BBQ permitted). Upstairs, the third floor boasts a primary bedroom with his-and-hers closets and a 3 piece ensuite, plus two additional bedrooms, a 4-piece main bath, and in-suite stacked washer and dryer for added convenience. Additional features include air conditioning and professional painting and cleaning prior to move-in, ensuring the home is in pristine condition. Tenants enjoy the excellent downtown Kitchener location: on bus route, 10 min walk to LRT, 5 min drive or 15-20min walk to downtown Kitchener amenities such as great restaurants and entertainment, Kitchener Farmers Market; 3min drive or 15min walk to GO station; 10min drive to UW or WLU; close to HWY 7 access. (id:27476)

Property Highlights

MLS® Number
40804212
Type
Single Family
Ownership Type
Freehold
Land Size
Unknown
Parking Space Total
2

Building

Building Type
Row / Townhouse
Storeys
3.00
Square Footage
1510 sqft
Bathrooms Total
3
Bedrooms Above Ground
3
Bedrooms Total
3
Amenities
Airport, Hospital, Park, Place of Worship, Playground, Public Transit, Schools, Shopping
Exterior Finish
Brick Veneer
Fireplace Present
No
Basement Type
None
Basement Features
Building Heating Type
Forced air
Heating Fuel
Building Cooling Type
Central air conditioning

Utilities

Water
Municipal water
Utility Sewer
Municipal sewage system

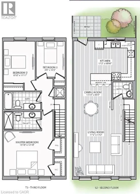
Room Layout

2pc Bathroom
Second level
Measurements not available
Living room
Second level
14'0'' x 17'3''
Dining room
Second level
13'0'' x 13'10''
Kitchen
Second level
11'2'' x 17'2''
Bedroom
Third level
10'3'' x 8'0''
Bedroom
Third level
11'11'' x 8'10''
4pc Bathroom
Third level
Measurements not available
Full bathroom
Third level
Measurements not available
Primary Bedroom
Third level
12'10'' x 13'10''

Location

Learn more about this property
Listing provided by:
CITIMAX REALTY LTD.
MLS® number:
40804212
Agent:
Teresa Godglick
*Indicates required field
Name is required
Email is required
Please enter a valid phone number (e.g., 416-111-1111).