1g - 350 Doon Valley Drive, Kitchener, Ontario N2P 2M9

Listed for:
$899,000
3 beds
3 baths
Listed 11 days ago
Row / Townhouse for rent: 1g - 350 Doon Valley Drive, Kitchener, Ontario N2P 2M9

View all 50 photos

About

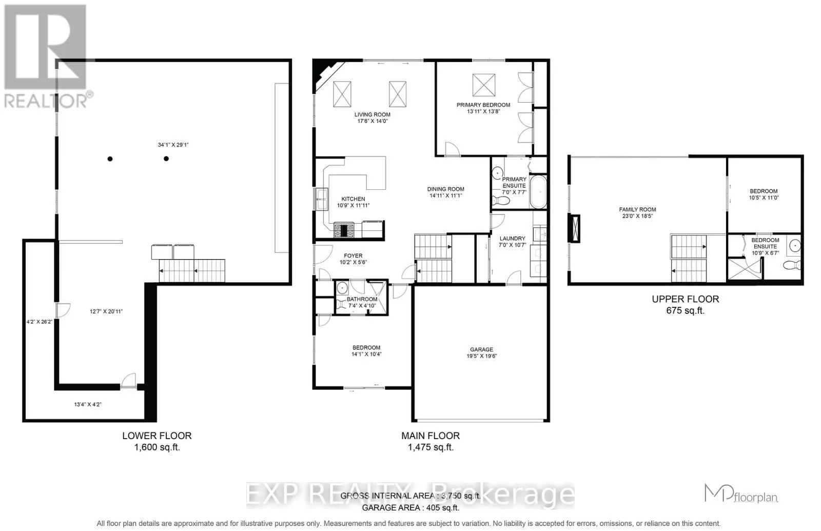
Doon Valley Dr / Old Mill Rd Welcome to 350 Doon Valley Drive, Suite 1G, an executive end-unit bungaloft in the prestigious Mill Club on the Grand River. Set in a serene, green enclave with access to scenic trails and conservation areas, this home is perfect for nature lovers and outdoor enthusiasts. At 2,150 sq ft, this home offers a thoughtful layout, hardwood floors, and plenty of windows that fill the space with natural light and comfort. The expansive living room features a soaring cathedral ceiling, fireplace, and walkout to the tranquil backyard deck with privacy given from trees and shrubs. The open-concept kitchen showcases stainless-steel appliances, elegant maple cabinetry, and a spacious breakfast bar, flowing seamlessly into the living and dining spaces. Three generously sized bedrooms each feature an ensuite, including a primary suite with cathedral ceilings, his-and-hers closets, and a spa-inspired soaker tub. The upper loft-style family room overlooks the living room, with an adjacent third bedroom completing the upper level. The main-floor laundry is the largest in the complex, with ample storage & built-in organizers. The 1,600 sq ft unfinished basement with bonus 7.6 ft ceiling height provides abundant space, including a rare large L-shaped cantina with two entrances and rough-in bathroom, ready to be customized for entertainment or additional living. Residents enjoy exclusive access to the Mill Clubhouse with lounge, library, gym, and billiards, along with community events and access to Grand River trails and Doon Valley Golf Course steps away. Low condo fees cover professional landscaping and snow removal, while a well-managed Condo Corporation maintains pristine grounds year-round. Quick access to HWY 401, shopping, dining, and transit completes this exceptional lifestyle opportunity. (id:27476)

Property Highlights

MLS® Number
X12801220
Type
Single Family
Maintenance Fee
387.00
Ownership Type
Condominium/Strata
Parking Space Total
4

Building

Building Type
Row / Townhouse
Storeys
1.50
Square Footage
2000 - 2249 sqft
Bathrooms Total
3
Bedrooms Above Ground
3
Bedrooms Total
3
Amenities
Exercise Centre, Visitor Parking, Party Room Golf Nearby, Public Transit, Schools
Exterior Finish
Brick, Vinyl siding
Fireplace Present
Yes
Basement Type
N/A (Unfinished)
Basement Features
Building Heating Type
Forced air
Heating Fuel
Natural gas
Building Cooling Type
Central air conditioning

Location

Learn more about this property
Listing provided by:
EXP REALTY
MLS® number:
X12801220
Agent:
Kerry Mantziounis
*Indicates required field
Name is required
Email is required
Please enter a valid phone number (e.g., 416-111-1111).