84 Avalon Place, Kitchener, Ontario N2M 4N7

Listed for:
$599,000
5 beds
4 baths
Listed 8 days ago
House for rent: 84 Avalon Place, Kitchener, Ontario N2M 4N7

View all 46 photos

About

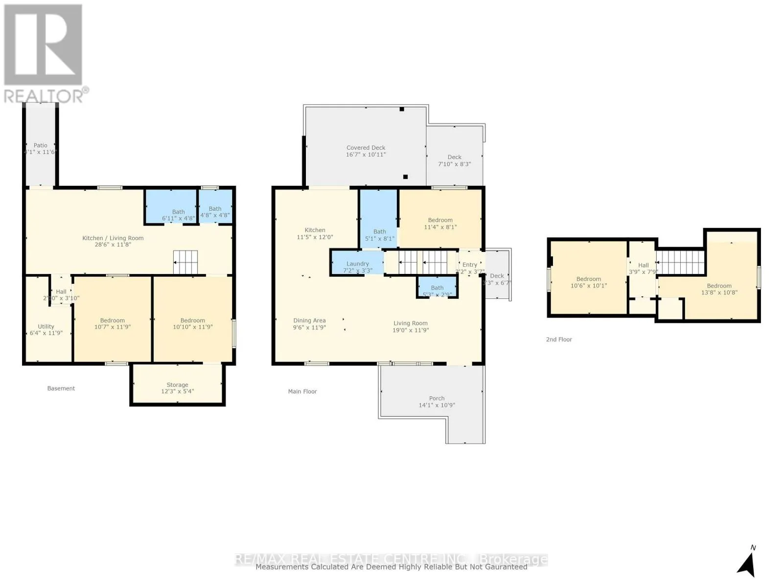
Cross Streets: between Stirling Ave and Southmoor Dr. ** Directions: From Stirling Ave S, turn onto Avalon Pl (located between Stirling Ave S and Southmoor Dr). Beautifully renovated all-brick home located in the desirable Forest Hill neighbourhood, set on a 50' x 106' lot. This spacious property offers 5 bedrooms and 4 bathrooms, ideal for families seeking functional living space in a well-established community. The main floor features an open-concept layout with combined living, dining, and kitchen areas, updated finishes, a main floor bedroom with ensuite, and a 2-piece powder room. The upper level includes 2 bedrooms with ample natural light. The fully finished basement provides additional living space with 2 bedrooms, a full bathroom, a 2-piece bathroom, and a separate entrance. Recent upgrades include roof, flooring, windows, and appliances (2025), A/C (2025), furnace (2016), electrical (2016), owned tankless hot water system, water softener (2016), pot lights, fresh paint, and sump pump (2025). Private backyard with space for outdoor use. Convenient location close to Forest Hill Public School, parks, walking trails, shopping, public transit, St. Mary's Hospital, and quick access to Hwy 7/8. (id:27476)

Property Highlights

MLS® Number
X12917054
Type
Single Family
Ownership Type
Freehold
Land Size
49.1 x 106.8 FT
Parking Space Total
7

Building

Building Type
House
Storeys
1.50
Square Footage
1100 - 1500 sqft
Bathrooms Total
4
Bedrooms Above Ground
3
Bedrooms Total
5
Exterior Finish
Brick
Fireplace Present
No
Basement Type
N/A (Finished), N/A, N/A
Basement Features
Separate entrance, Walk-up
Building Heating Type
Forced air
Heating Fuel
Natural gas
Building Cooling Type
Central air conditioning

Utilities

Water
Municipal water
Utility Sewer
Sanitary sewer

Location

Learn more about this property
Listing provided by:
RE/MAX REAL ESTATE CENTRE INC.
MLS® number:
X12917054
Agent:
Pk Kapoor
*Indicates required field
Name is required
Email is required
Please enter a valid phone number (e.g., 416-111-1111).

Street Spotlight - For sale