44 Breckenridge Drive, Kitchener, Ontario N2B 2N9

Listed for:
$549,900
3 beds
2 baths
Listed 4 days ago
House for rent: 44 Breckenridge Drive, Kitchener, Ontario N2B 2N9

View all 45 photos

About

Turn North onto Breckenridge Drive from Ottawa Street North, and find the home on the right side of the street. This all-brick semi-detached freehold bungalow offers convenient main-floor living, garage parking, walkout basement, and a location on a quiet street just a few blocks from the Stanley Park Place and Community Centre! Enjoy the ease of bungalow living with 3x main-floor bedrooms and 4-piece bathroom. The spacious kitchen delivers ample storage and full appliance package including updated dishwasher. Enjoy dining with great natural light from the sliding-door. Access to the outdoors makes accessing your bbq a breeze! The fully-fenced backyard provides mature tree coverage, storage shed, space for gardens, and clothesline. Relax on the covered front porch. Make use of the garage parking to keep your vehicle out of the elements. A walkout basement here provides for possibilities! Find a second full bathroom in the basement along with spacious recreation room. The utility room offers washer & dryer set and sump pump. Notable updates include roof shingles, furnace, sump pump, dishwasher, asphalt driveway, and eavestrough gutter guards. This home is being sold 'as is, where is' by an executor of the estate. With some great features, this home has great potential for buyers looking for main-floor living and those who can see potential of the walkout basement. Nearby amenities including Stanley Park Conservation Area, Stanley Park Place shopping centre, Stanley Park Community Centre, and Grand River Recreation Complex with swimming pool, playgrounds, ball diamonds, and lawn bowling. Highway access and Kitchener Auditorium nearby. A great offering at home, and with a collection of exciting amenities nearby, this is worth seeing today! (id:27476)

Property Highlights

MLS® Number
40816538
Type
Single Family
Ownership Type
Freehold
Land Size
under 1/2 acre
Parking Space Total
3

Building

Building Type
House
Storeys
1.00
Square Footage
1616 sqft
Bathrooms Total
2
Bedrooms Above Ground
3
Bedrooms Total
3
Amenities
Park, Place of Worship, Playground, Public Transit, Schools, Shopping
Exterior Finish
Brick
Fireplace Present
No
Basement Type
Full (Finished)
Basement Features
Building Heating Type
Forced air
Heating Fuel
Natural gas
Building Cooling Type
Central air conditioning

Utilities

Water
Municipal water
Utility Sewer
Municipal sewage system, Septic System

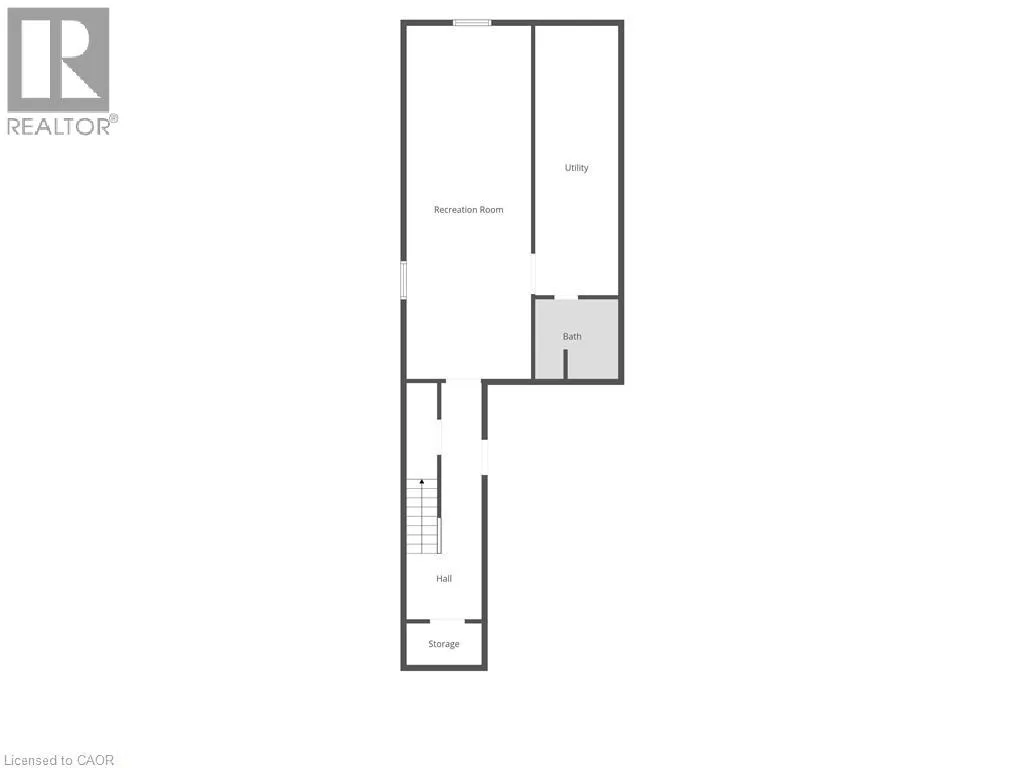
Room Layout

Recreation room
Basement
30'9'' x 10'10''
3pc Bathroom
Basement
7'3'' x 6'11''
Primary Bedroom
Main level
14'5'' x 10'0''
Bedroom
Main level
11'8'' x 8'5''
Bedroom
Main level
8'6'' x 10'0''
4pc Bathroom
Main level
7'6'' x 4'10''
Dining room
Main level
9'11'' x 9'1''
Kitchen
Main level
11'9'' x 8'11''
Living room
Main level
16'7'' x 11'10''

Location

Learn more about this property
Listing provided by:
Royal LePage Wolle Realty
MLS® number:
40816538
Agent:
Matthew Davidson
*Indicates required field
Name is required
Email is required
Please enter a valid phone number (e.g., 416-111-1111).

Street Spotlight - For sale