A1 - 70 Willowrun Drive E, Kitchener, Ontario N2A 0J3

Listed for:
$598,988
2 beds
3 baths
Listed 8 days ago
Row / Townhouse for rent: A1 - 70 Willowrun Drive E, Kitchener, Ontario N2A 0J3

View all 47 photos

About

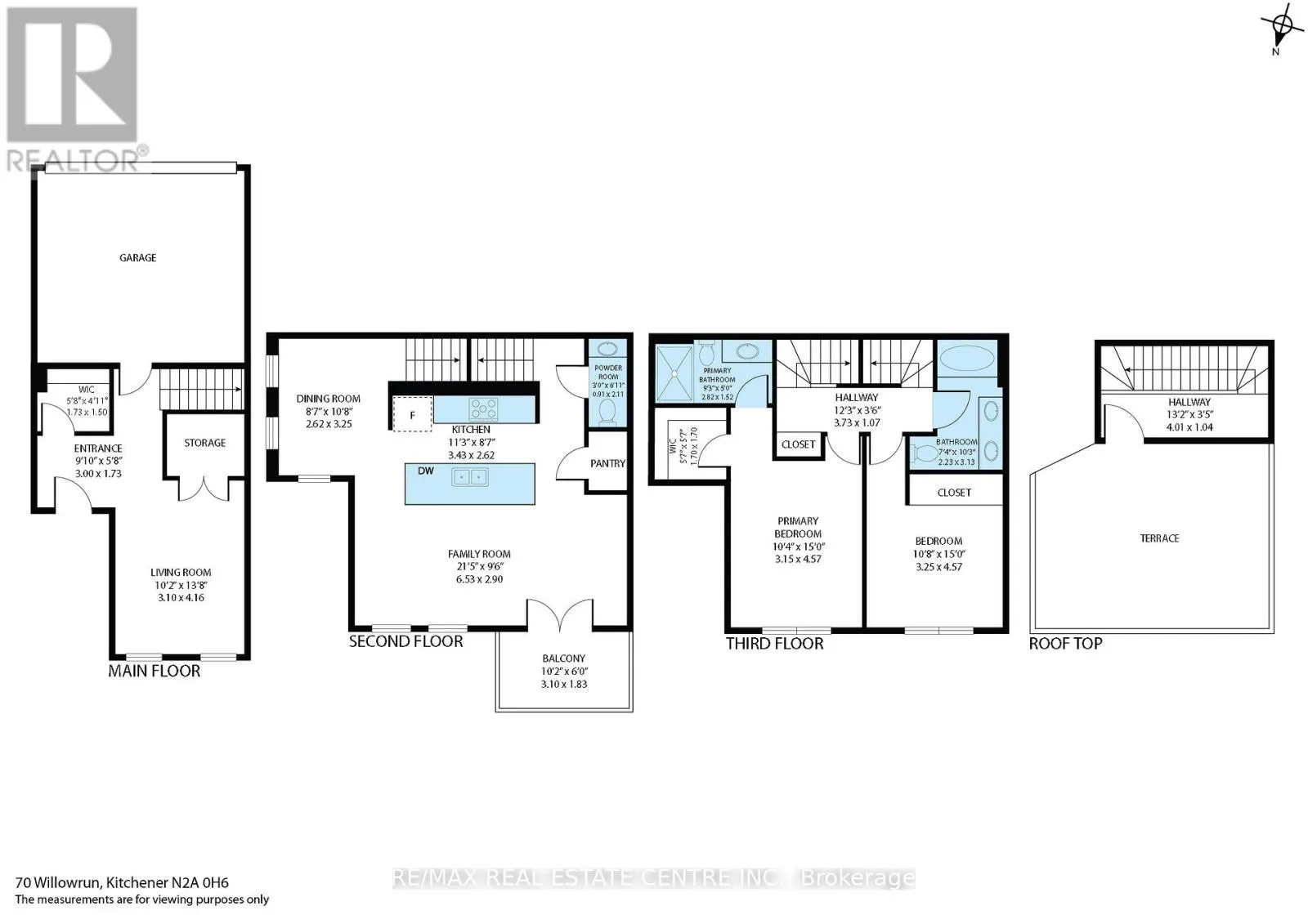
Fairway Rd. North Discover elevated living in this upgraded former model-suite end unit.- This multi-level townhome featuring stylish finishes, added privacy, and thoughtful upgrades throughout.The fully finished main level offers a cozy family room, a convenient laundry area, and direct access to an oversized garage with upgraded ceiling storage and a Ring Smart Security System.On the second level, enjoy a bright, open-concept kitchen with stainless steel appliances, a large island, gas stove, wine fridge, and quartz countertops. The living room features built-in ceiling speakers and opens onto a private balcony-perfect for entertaining. This level also includes a dining area and a modern 2-piece powder room. Smart home upgrades, including smart light switches, and a Ring Alarm System, add everyday comfort and convenience.The third level offers a spacious primary bedroom with a spa-like ensuite, double vanity, and a walk-in closet. A second bedroom and a sleek 4-piece bathroom provide flexible space for family, guests, or a home office.At the top, the rooftop terrace offers great views, additional storage, and an outdoor water supply-ideal for relaxing or entertaining.Located just minutes from Highway 401, with easy access to Cambridge, Guelph, and Waterloo, and close to schools, parks, and everyday amenities. You're also near the Grand River and Chicopee Ski & Summer Resort.This is a rare opportunity to own a former model home loaded with upgrades-don't miss your chance. (id:27476)

Property Highlights

MLS® Number
X12977138
Type
Single Family
Maintenance Fee
500.43
Ownership Type
Condominium/Strata
Parking Space Total
2

Building

Building Type
Row / Townhouse
Storeys
3.00
Square Footage
1600 - 1799 sqft
Bathrooms Total
3
Bedrooms Above Ground
2
Bedrooms Total
2
Amenities
Visitor Parking, Separate Electricity Meters Park, Place of Worship, Public Transit
Exterior Finish
Brick, Vinyl siding
Fireplace Present
No
Basement Type
None
Basement Features
Building Heating Type
Forced air
Heating Fuel
Natural gas
Building Cooling Type
Central air conditioning

Location

Learn more about this property
Listing provided by:
RE/MAX REAL ESTATE CENTRE INC.
MLS® number:
X12977138
Agent:
Susan Toich
*Indicates required field
Name is required
Email is required
Please enter a valid phone number (e.g., 416-111-1111).