1462 County Rd 22, Lakeshore, Ontario N8L 0H9

Listed for:
$689,900
3 beds
2 baths
Listed 18 days ago
House for rent: 1462 County Rd 22, Lakeshore, Ontario N8L 0H9

View all 35 photos

Learn more about this property
Listing provided by:
CENTURY 21 LOCAL HOME TEAM REALTY INC.
MLS® number:
25027855
Agent:
Debbie Warren
*Indicates required field
Name is required
Email is required
Please enter a valid phone number (e.g., 416-111-1111).

About

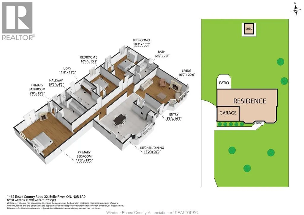
Nestled on a 104.99 x 173.43 Lot, close to town but loads of elbow space & no rear neighbours. Beautiful brick custom built ranch approx 2177 sq ft on one floor. Great for people with mobility issues, no stairs, no different floor heights, wide halls and doorways. Many improvements; furnace-2019, central air-2021, side walks & patios-2019, leaf guard for eaves-2018, diamond deck roof with 50 year warranty- 2015, granite countertops-2018, front door-2016, back door-2020, TV tower & rotor-2016, attic reinsulated-2015, fence in backyard & shed-2018, water heater is rented-installed 2023. New addition to the concrete driveway. Lots of room for parking (2025), extra large kitchen with loads of cupboards and counter space will make any cook happy. Gleaming hardwood floors. This would be a wonderful retirement home. Absolutely move in ready! (id:27476)

Property Highlights

MLS® Number
25027855
Type
Single Family
Ownership Type
Freehold
Land Size
104.99 X 173.43 FT

Building

Building Type
House
Storeys
1.00
Square Footage
2177 sqft
Bathrooms Total
2
Bedrooms Above Ground
3
Bedrooms Total
3
Exterior Finish
Brick
Fireplace Present
Yes
Basement Type
Basement Features
Building Heating Type
Forced air, Furnace
Heating Fuel
Natural gas
Building Cooling Type
Central air conditioning

Location