19 Shady Lane, Lambton Shores, Ontario N0M 1T0

Listed for:
$1,950,000
5 beds
3 baths
Listed 284 days ago
House for rent: 19 Shady Lane, Lambton Shores, Ontario N0M 1T0

View all 37 photos

Learn more about this property
Listing provided by:
ROYAL LEPAGE TRILAND REALTY
MLS® number:
X11955697
Agent:
Mike Sloan
*Indicates required field
Name is required
Email is required
Please enter a valid phone number (e.g., 416-111-1111).

About

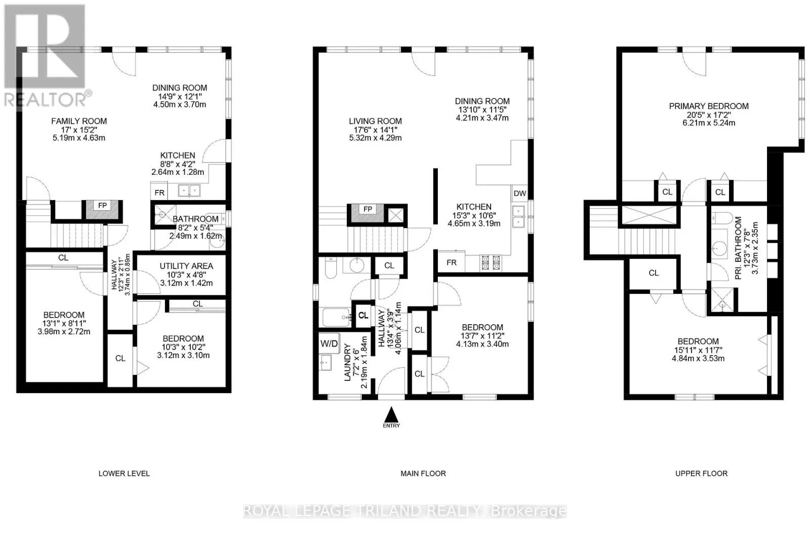
Cross Streets: 19 SHADY LANE, GRAND BEND, ON: Tucked into the bottom a secluded dead-end road. ** Directions: 19 SHADY LANE, GRAND BEND, ON: Tucked into the secluded bottom section of an ultra quiet dead-end road just steps to the beach, even closer to your private dock, & steps to downtown amenities as well! Private Gate access not available w/o a Realtor!. LAKEFRONT ALTERNATIVE | SENSATIONAL & ICONIC GRAND BEND RIVERFRONT CHARMER W/ PANORAMIC LAKE VIEWS | 50 FT OF BOAT DOCKAGE | ROCK SOLID 4 SEASON WALK-OUT DUPLEX | 3 STORIES OF WATER FRONTAGE FOR EPIC SUNSETS: This 5 bed/3 full bath/2 kitchen 2611 sq ft waterfront charmer is a definitive example of the phrase ONE-OF-A-KIND. Are you in search of a property that can offer lakefront views & breathtaking sunset panoramas with your boat docked 30 ft from your front door? Such a phenomenal combination of benefits is extremely rare. These exceptional properties, of which Grand Bend has very few; offering boat docks w/ LAKEFRONT benefits situated just 325 mtrs from Grand Bend's famous & forever sandy Main Beach at the river mouth; are kept in the family & cherished by their owners for decades. And within this elite limited-edition category of Real Estate, 19 Shady Lane is irrefutably at the top of the charts due its outstanding geographic position. The photos are true, a visual truth that is even more stunning in person, outdoors & in, from every riverfront & lakeside angle in the SW facing sections of the house. Yes, this lot is superb, but the magic & beauty of this property is found throughout the enchanting home that is so perfectly positioned upon it. This extremely well-kept gem is the Romeo of the riverfront from the various levels of lake view patios, decks, & covered + uncovered outdoor spaces to the immaculate gardens & that lifetime steel eco roof - & the interior is just as tight! The classic hardwood flooring & endless waterfront windows frame in the perfect setting, with the oversized lakeview riverfront master w/ private balcony being unbeatable. The home also boasts a completely self-sufficient walk-out 2 bed-unit w/ its own kitchen. The clever placement of the 5 bedrooms across 3 levels w/ main level laundry is ideal for a multi-generational situation & the secured/gated entrance & parking is perfect for all the toys! Time to live the dream! (id:27476)

Property Highlights

MLS® Number
X11955697
Type
Single Family
Community Name
Grand Bend
Ownership Type
Freehold
Land Size
50.1 x 159.5 Acre ; L shape with private laneway attached|under 1/2 acre
Parking Space Total
11

Building

Building Type
House
Storeys
2.50
Square Footage
2000 - 2500 sqft
Bathrooms Total
3
Bedrooms Above Ground
3
Bedrooms Total
5
Amenities
Fireplace(s), Separate Heating Controls Golf Nearby
Exterior Finish
Wood
Fireplace Present
Yes
Basement Type
N/A, N/A
Basement Features
Walk out, Separate entrance
Building Heating Type
Hot water radiator heat
Heating Fuel
Natural gas
Building Cooling Type
Central air conditioning

Utilities

Water
Municipal water
Utility Sewer
Sanitary sewer

Location

Community Spotlight: Homes For sale in Your Neighborhood