9936 Ontario Street, Lambton Shores, Ontario N0M 2L0

Listed for:
$1,179,900
3 beds
2 baths
Listed 132 days ago
House for rent: 9936 Ontario Street, Lambton Shores, Ontario N0M 2L0

View all 46 photos

Learn more about this property
Listing provided by:
ROYAL LEPAGE TRILAND PREMIER BROKERAGE
MLS® number:
X12370669
Agent:
Scott Purdy
*Indicates required field
Name is required
Email is required
Please enter a valid phone number (e.g., 416-111-1111).

About

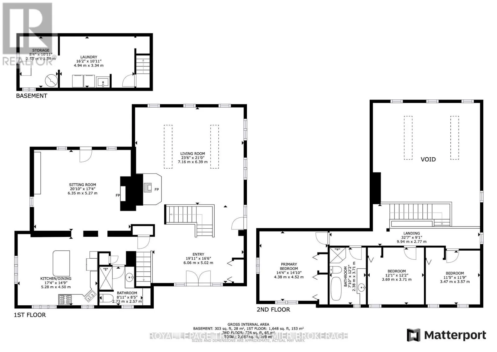
FROM PORT FRANKS RD, TURN ONTO ONTARIO ST Seize this opportunity to own a piece of history in beautiful Port Franks! This picturesque log cabin is nestled on a mature treed lot and features all the conveniences of modern day living. The generous main floor boasts a cozy dining/sitting room with exposed beams, hardwood flooring and gas fireplace; double height family room with log interior walls, vaulted ceilings, sky lights, grand wooden open riser staircase, and gas fireplace; eat in kitchen with updated appliances (2019) and island with breakfast bar; updated bathroom and large foyer. The upper level boasts full views of the family room with updated main bathroom including tiled shower with glass enclosure, double sinks and stand alone soaker tub and 3 generous bedrooms including primary with vaulted ceilings, double closets and sky light. The entire home is surrounded by wrap around porches and decks with stunning landscaping and hot tub all with privacy from the mature trees. The expansive treed lot spans 198 ft front by 247ft depth. Large triple car detached garage is perfect for parking or hobbiest. Outdoor features include generous driveway with room for RV/boat parking, fire pit, irrigation system (2020), and 2 sand points which provide water for the lawn and gardens. Luxury vinyl flooring (2022), painted (2022), electrical for hot tub, and electrical for generator. Wonderful location being walking distance to 3 marinas, community centre, playground, trails and library and in close proximity to private Port Franks beach, golf coarse and restaurants. (id:27476)

Property Highlights

MLS® Number
X12370669
Type
Single Family
Community Name
Port Franks
Ownership Type
Freehold
Land Size
198 x 247 FT ; 164.64ftx130.10ftx246.82fx128.29fx81.67f
Parking Space Total
13

Building

Building Type
House
Storeys
2.00
Square Footage
2500 - 3000 sqft
Bathrooms Total
2
Bedrooms Above Ground
3
Bedrooms Total
3
Amenities
Fireplace(s) Beach, Marina, Park
Exterior Finish
Wood
Fireplace Present
Yes
Basement Type
Partial (Unfinished)
Basement Features
Building Heating Type
Forced air
Heating Fuel
Natural gas
Building Cooling Type
Central air conditioning

Utilities

Water
Municipal water
Utility Sewer
Septic System

Location