10257 Woodpark Court, Lambton Shores, Ontario N0M 1T0

Listed for:
$899,900
4 beds
3 baths
Listed 62 days ago
House for rent: 10257 Woodpark Court, Lambton Shores, Ontario N0M 1T0

View all 50 photos

Learn more about this property
Listing provided by:
SUTTON GROUP - SELECT REALTY
MLS® number:
X12512936
Agent:
Vanessa Franjkovic
*Indicates required field
Name is required
Email is required
Please enter a valid phone number (e.g., 416-111-1111).

About

Parkside & Woodpark Attention cottagers, investors, downsizers, upsizers - this 3-level, 4-bed, 3-bath, 2,454 sf home is a short 10-min stroll to multiple private, deeded beaches, where soft sand, clear waters & world-famous sunsets await. Welcome to a fully furnished Muskoka-inspired retreat, located on a cul-de-sac in Grand Bend's desirable Southcott Pines, and steps from Southcott's river trail & Brewster Park, great for kids. The home is beautifully nestled beneath a canopy of old-growth Oaks on a desirable corner lot with no neighbors on 2 sides. Timeless curb appeal sets the stage with a stamped concrete driveway framed by stone light pillars. Inside, a lodge-style 2-story great room takes centre stage with a soaring fieldstone fireplace (new gas insert!), a pine cathedral ceiling & rich pine flooring. The spacious kitchen features a granite island, stainless steel appliances, warm timber cabinetry, a built-in beverage fridge, prep counter & glass sliding doors that open to a dining deck for seamless indoor, outdoor entertaining. The main floor offers a primary bedroom retreat with glass sliding doors & 3-peice bath. A second level elevated catwalk overlooks the great room and leads to 2 more bedrooms & 5-piece bath. The fully finished walkout basement has a 2nd gas fireplace, 4th bedroom with glass sliding doors & 4-piece bath. This property is designed for year-round entertaining with multiple large decks, custom firepit, several entertainment zones & 5 entry points, allowing guests to flow through the home and property with comfort & ease. The home is heated by 2 gas fireplaces with backup baseboard & 2 ductless air conditioning units cool the whole house. This turnkey home is within walking distance of beaches, downtown Grand Bend, trails, amenities & comes with a special pass for deeded beach access - map in photos shows deeded beach locations. Autumn & winter are also equally as spectacular as summer in Southcott! Vacant possession & flexible close, comes fully furnished! (id:27476)

Property Highlights

MLS® Number
X12512936
Type
Single Family
Community Name
Grand Bend
Ownership Type
Freehold
Land Size
114.2 x 151.5 FT ; 114.17ft x 78.29ft x 151.49ft x 149.98ft|under 1/2 acre
Parking Space Total
7

Building

Building Type
House
Storeys
2.00
Square Footage
1500 - 2000 sqft
Bathrooms Total
3
Bedrooms Above Ground
4
Bedrooms Total
4
Amenities
Fireplace(s) Beach, Marina, Park
Exterior Finish
Aluminum siding
Fireplace Present
Yes
Basement Type
N/A (Finished)
Basement Features
Walk out
Building Heating Type
Baseboard heaters
Heating Fuel
Natural gas
Building Cooling Type
Wall unit

Utilities

Water
Municipal water
Utility Sewer
Septic System

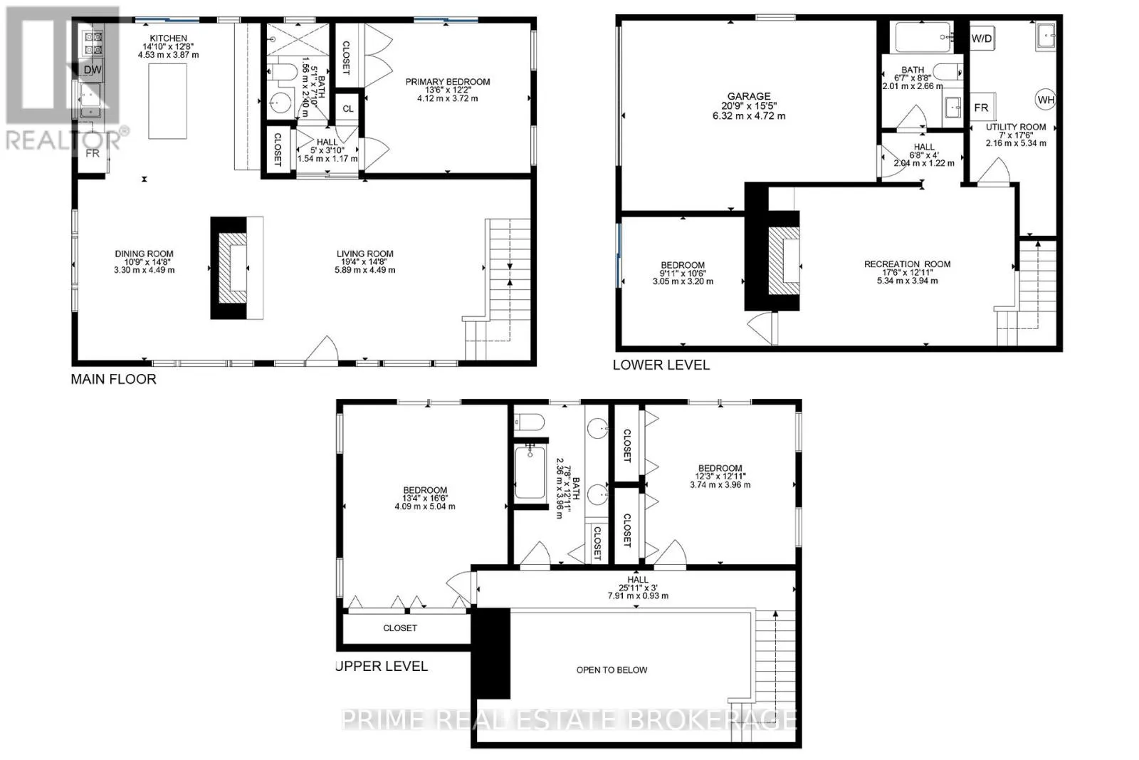
Room Layout

Bathroom
Lower level
2.01 m x 2.66 m
Recreational, Games room
Lower level
5.34 m x 3.94 m
Bedroom
Lower level
3.05 m x 3.2 m
Living room
Main level
5.89 m x 4.49 m
Dining room
Main level
3.3 m x 4.49 m
Kitchen
Main level
4.53 m x 3.87 m
Primary Bedroom
Main level
4.12 m x 3.72 m
Bathroom
Main level
1.56 m x 2.4 m
Bedroom
Upper Level
4.09 m x 5.04 m
Bedroom
Upper Level
3.74 m x 3.96 m
Bathroom
Upper Level
2.36 m x 3.96 m

Location

Community Spotlight: Homes For sale in Your Neighborhood