19 Lois Court, Lambton Shores, Ontario N0M 1T0

Listed for:
$834,159
4 beds
3 baths
Listed 100 days ago
House for rent: 19 Lois Court, Lambton Shores, Ontario N0M 1T0

View all 38 photos

About

Brooklawn Dr Listing price reflects anticipated expanded HST rebate for agreements between Apr 1, 2026-Mar 31, 2027,subject to government approval and the expanded HST rebate being in effect at closing and Buyer eligibility. If not in effect at closing purchase price shall be $919,900, reflecting the existing $24,000 Hst rebate credited back to the Builder/Seller. If the Buyer does not qualify for either the existing or anticipated expanded HST rebate the Buyer shall be responsible for full HST. Contact listing agent for details .... Quality and value are paramount in this impressive offering from Rice Homes. With 2,369 sq. ft. of finished living area this 4 bedroom, 3 bath home is sure to please. Features include: open concept living area with 9 & 10' ceilings, gas fireplace, center island with kitchen, 5 appliances, main floor laundry, master ensuite with walk in closet, pre-engineered hardwood floors, front and rear covered porches, basement fully finished, Hardie Board exterior for low maintenance. Concrete drive & walkway. Call or email L.A. for long list of standard features and finishes. Newport Landing features an incredible location just a short distance from all the amenities Grand Bend is famous for. Walk to shopping, beach, medical and restaurants! No short term rentals are not allowed in this development, enforced by restrictive covenants registered on title. Property has not been assessed yet. (id:27476)

Property Highlights

MLS® Number
X12665526
Type
Single Family
Community Name
Grand Bend
Ownership Type
Freehold
Land Size
53.7 x 100.3 FT
Parking Space Total
6

Building

Building Type
House
Storeys
1.00
Square Footage
1100 - 1500 sqft
Bathrooms Total
3
Bedrooms Above Ground
2
Bedrooms Total
4
Amenities
Fireplace(s) Beach, Golf Nearby
Exterior Finish
Hardboard, Stone
Fireplace Present
Yes
Basement Type
N/A (Finished)
Basement Features
Building Heating Type
Forced air
Heating Fuel
Natural gas
Building Cooling Type
Central air conditioning, Air exchanger

Utilities

Water
Municipal water
Utility Sewer
Sanitary sewer

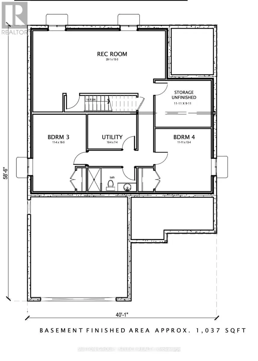
Room Layout

Utility room
Lower level
3.15 m x 2.24 m
Other
Lower level
3.63 m x 3.02 m
Recreational, Games room
Lower level
8.79 m x 4.04 m
Bedroom 3
Lower level
5 m x 3.45 m
Bedroom 4
Lower level
4.06 m x 3.63 m
Foyer
Main level
2.26 m x 1.43 m
Kitchen
Main level
3.89 m x 3.51 m
Dining room
Main level
4.98 m x 3.51 m
Living room
Main level
2.21 m x 4.29 m
Primary Bedroom
Main level
4.27 m x 3.51 m
Bedroom 2
Main level
3.51 m x 3.35 m
Laundry room
Main level
2.13 m x 1.83 m

Location

Learn more about this property
Listing provided by:
SUTTON GROUP - SELECT REALTY
MLS® number:
X12665526
Agent:
Ruth Dean
*Indicates required field
Name is required
Email is required
Please enter a valid phone number (e.g., 416-111-1111).