6 - 5969 Townsend Line, Lambton Shores, Ontario N0N 1J0

Listed for:
$469,900
2 beds
2 baths
Listed 20 days ago
Row / Townhouse for rent: 6 - 5969 Townsend Line, Lambton Shores, Ontario N0N 1J0

View all 47 photos

About

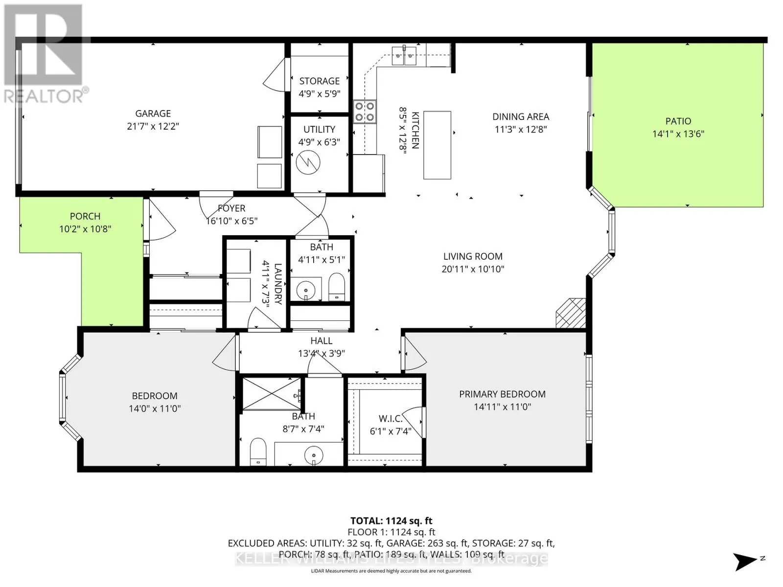
Cross Streets: TOWNSEND LINE. ** Directions: From Main St E turn onto Townsend Line. Just past Canadian Tire take a left into Townsend Meadows. Welcome to Townsend Meadows, a 55+ exclusive life lease community located on the edge of Forest-offering the perfect blend of convenience and peace of mind. Enjoy low-maintenance living with a monthly occupancy fee, which includes lawn care, snow removal, and use of the community hall, giving you more time to enjoy the lifestyle you deserve.This bright and inviting 2-bedroom, 1.5-bath home offers 1,175 sq. ft. of thoughtfully designed living space. The open-concept layout features a spacious kitchen and dining area that flows into a comfortable living room-perfect for entertaining or relaxing. The attached single-car garage provides convenience and additional storage, while the concrete patio with gas connections offers the ideal space for outdoor dining or a cozy fire table. Set on a peaceful lot backing onto open farmland, this home offers beautiful country views and added privacy with no rear neighbours. Experience comfortable, low-maintenance living in a welcoming community designed to let you relax and enjoy every moment. (id:27476)

Property Highlights

MLS® Number
X12690470
Type
Single Family
Community Name
Forest
Ownership Type
Freehold
Parking Space Total
2

Building

Building Type
Row / Townhouse
Storeys
1.00
Square Footage
1100 - 1500 sqft
Bathrooms Total
2
Bedrooms Above Ground
2
Bedrooms Total
2
Exterior Finish
Brick
Fireplace Present
Yes
Basement Type
None
Basement Features
Building Heating Type
Other
Heating Fuel
Building Cooling Type
Wall unit

Utilities

Water
Municipal water
Utility Sewer
Sanitary sewer

Room Layout

Living room
Main level
6.13 m x 3.3 m
Dining room
Main level
3.43 m x 3.86 m
Kitchen
Main level
2.57 m x 3.86 m
Primary Bedroom
Main level
4.55 m x 3.35 m
Bedroom
Main level
4.3 m x 2.23 m
Laundry room
Main level
1.45 m x 1.75 m
Other
Main level
1.45 m x 1.91 m
Utility room
Main level
1.45 m x 1.91 m
Foyer
Main level
5.13 m x 1.98 m

Location

Learn more about this property
Listing provided by:
KELLER WILLIAMS LIFESTYLES
MLS® number:
X12690470
Agent:
Colin Van Moorsel
*Indicates required field
Name is required
Email is required
Please enter a valid phone number (e.g., 416-111-1111).

Street Spotlight - For sale