10221 Shoreline Drive, Lambton Shores, Ontario N0M 1T0

Listed for:
$1,499,500
4 beds
4 baths
Listed 71 days ago
House for rent: 10221 Shoreline Drive, Lambton Shores, Ontario N0M 1T0

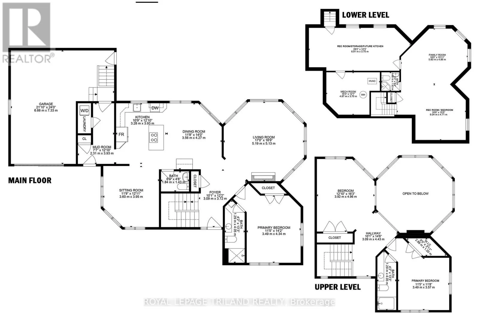
View all 50 photos

About

Cross Streets: Sherwood Crescent beach path. ** Directions: MAP to 10221 SHORELINE DR, GRAND BEND, ON | Nestled into an extremely private wooded lot just 1 row off the LAKEFRONT & directly across from a beach path is this excellent home, just 325 ft from the Water's edge / 1 MINUTE WALK TO DEEDED SANDY BEACH!. SOUTHCOTT PINES PREMIUM LOCATION 1 ROW FROM LAKEFRONT | GRAND BEND DEEDED BEACH LIVING AT ITS BEST w/ MASTER BED WINDOW 100 MTRS FROM THE SOUND OF WAVES LAPPING UP ON SHORELINE | EXQUISITE & YOUNG ARTS & CRAFTS 4 SEASON CUSTOM HOME BY STEEPER | 2 MASTER SUITES | IN-FLOOR HEAT | SENSATIONAL OCTAGONAL 21 FT FIREPLACE GREAT ROOM w/ FLOOR to CEILING WINDOWS FRAMING IN A PRIVATE FOREST | EXCEPTIONALLY SECLUDED LOT! This 4 bath 3 bed (+ "4th bed" bunky/sleeping area in lower) offers 2800 SQ FT of impeccably well-kept & well-finished living space w/ another 600 SQ FT of unfinished floor space to grow into in lower (3452 SQ FT floorspace total). The layout offers something for everyone in the family w/ a main level master w/ ensuite bath, a spacious cherry kitchen/dining area walking out to the natural gas serviced BBQ deck & featuring tasteful granite & a large island + tons of cabinet space & a premium cabinet ready fridge, a large sitting room/formal dining room/or 4th bed, mud room, addt'l bathroom, & main level laundry. The most impressive main level space however, which is possibly one of the most extraordinary rooms in Southcott Pines, is the 21 FT high octagonal fireplace great room walking out to a large sundeck & overlooking mature pines & oaks w/o a neighbor in sight! This room alone is a feature that was a significant upgrade on this impressive custom home, along w/ the Romeo & Juliette balcony style bedroom looking down into this incredible space from the 2nd floor. Also on floor 2, you get a 2nd master suite w/ ensuite bath & walk-in closet + a handy office area at the top of the open staircase. The lower level, all over in-floor radiant gas heat, offers a large open space w/ a family room + a sleeping area (4th bed), a full bath (4th bath) along w/ a separate entrance from the garage fostering massive potential for a 2nd suite! Serious value here folks, w/ low maint. gorgeous stone & perennial landscaping to enjoy as you take that 1 min walk to the beach! (id:27476)

Property Highlights

MLS® Number
X12858580
Type
Single Family
Community Name
Grand Bend
Ownership Type
Freehold
Land Size
100 x 160 FT
Parking Space Total
7

Building

Building Type
House
Storeys
2.00
Square Footage
2000 - 2500 sqft
Bathrooms Total
4
Bedrooms Above Ground
3
Bedrooms Total
4
Amenities
Fireplace(s) Beach, Park, Marina
Exterior Finish
Wood, Cedar Siding
Fireplace Present
Yes
Basement Type
N/A (Partially finished), N/A
Basement Features
Separate entrance
Building Heating Type
Forced air
Heating Fuel
Natural gas
Building Cooling Type
Central air conditioning, Air exchanger, Ventilation system

Utilities

Water
Municipal water
Utility Sewer
Septic System

Room Layout

Bathroom
Second level
4.05 m x 1.29 m
Bedroom 3
Second level
4.96 m x 3.92 m
Primary Bedroom
Second level
3.49 m x 3.57 m
Family room
Lower level
5.8 m x 4.86 m
Bedroom 4
Lower level
6.04 m x 4.71 m
Recreational, Games room
Lower level
8.91 m x 3.75 m
Utility room
Lower level
4.67 m x 3.7 m
Foyer
Main level
3.09 m x 3.72 m
Great room
Main level
5.19 m x 5.13 m
Kitchen
Main level
3.56 m x 7.55 m
Primary Bedroom
Main level
4.34 m x 3.49 m
Bathroom
Main level
4.05 m x 1.29 m
Dining room
Main level
3.95 m x 3.6 m
Bathroom
Main level
1.43 m x 1.84 m
Mud room
Main level
3.93 m x 2.31 m
Laundry room
Main level
1 m x 2.96 m

Location

Learn more about this property
Listing provided by:
ROYAL LEPAGE TRILAND REALTY
MLS® number:
X12858580
Agent:
Mike Sloan
*Indicates required field
Name is required
Email is required
Please enter a valid phone number (e.g., 416-111-1111).

Community Spotlight: Homes For sale in Your Neighborhood