1005 South Street, Langton, Ontario N0E 1G0

Listed for:
$746,000
3 beds
2 baths
Listed 52 days ago
House for rent: 1005 South Street, Langton, Ontario N0E 1G0

View all 48 photos

Learn more about this property
Listing provided by:
Van Londersele Real Estate Brokerage Ltd.
MLS® number:
40789217
Agent:
Paul Van Londersele
*Indicates required field
Name is required
Email is required
Please enter a valid phone number (e.g., 416-111-1111).

About

Corner of Highway 59 and South St. Inviting Brick Ranch with Unlimited Potential on Langton’s Southern Edge! Trade the noise for nature in this beautifully maintained, one-owner brick ranch tucked along the peaceful southern edge of Langton. With wide open skies and the calm of country living, this property offers the perfect escape at the end of a busy day. Step inside to a bright, airy, open-concept living space where the kitchen, dining, and living areas blend effortlessly, ideal for hosting friends, unwinding with family, or creating new memories. Enjoy 3 bedrooms, 2 well appointed bathrooms, and the convenience of a main-floor laundry room, making daily life easy and comfortable. Outside, the oversized attached double garage provides all the space you need, and the expansive lot invites your imagination, build a dream workshop, design a lush garden retreat, or craft the ultimate outdoor entertainment zone. The full open basement adds even more opportunity, ready to become a rec room, home gym, extra bedrooms or whatever you envision. Don’t miss this opportunity to put down roots in a quiet, welcoming community. Country charm, room to grow, and endless possibilities! (id:27476)

Property Highlights

MLS® Number
40789217
Type
Single Family
Ownership Type
Freehold
Land Size
1/2 - 1.99 acres
Parking Space Total
6

Building

Building Type
House
Storeys
1.00
Square Footage
2000 sqft
Bathrooms Total
2
Bedrooms Above Ground
3
Bedrooms Total
3
Amenities
Playground, Schools
Exterior Finish
Brick Veneer
Fireplace Present
No
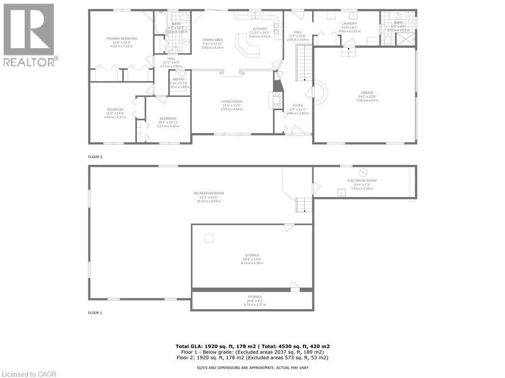
Basement Type
Full (Unfinished)
Basement Features
Building Heating Type
Forced air
Heating Fuel
Natural gas
Building Cooling Type
Central air conditioning

Utilities

Water
Sand point
Utility Sewer
Septic System

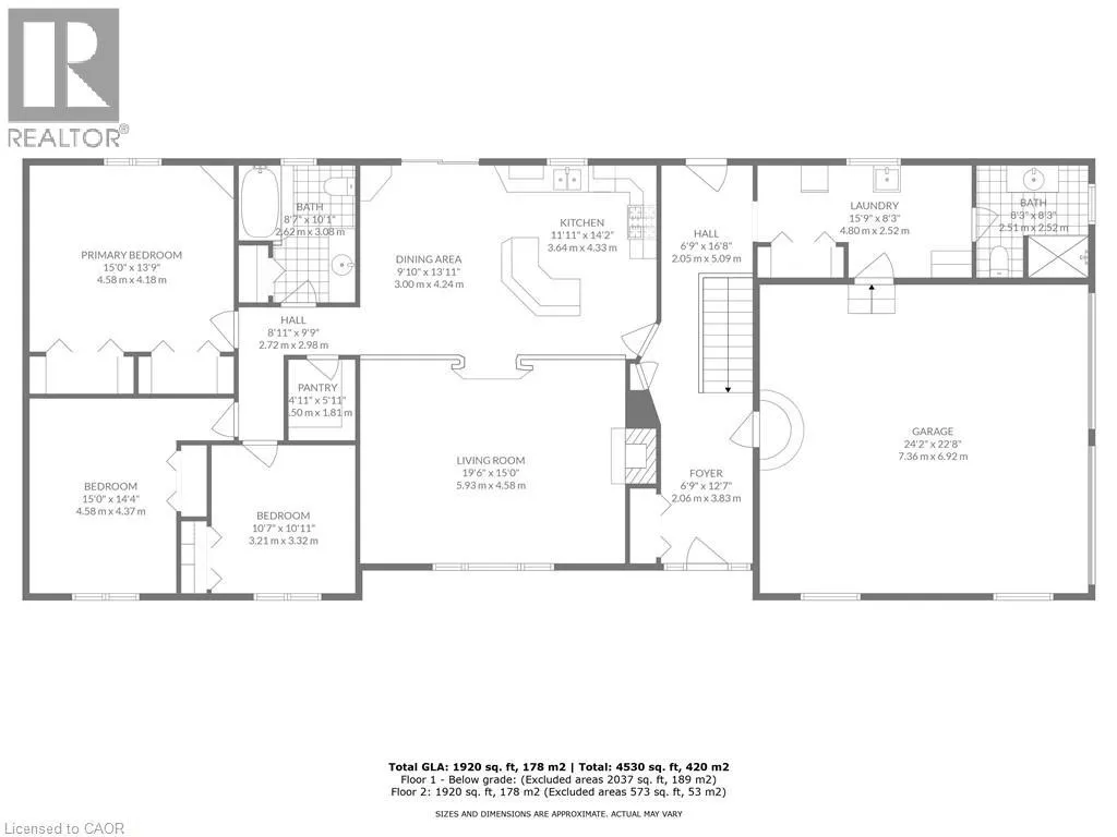
Room Layout

3pc Bathroom
Main level
8'7'' x 10'1''
Primary Bedroom
Main level
15'0'' x 13'9''
Bedroom
Main level
15'0'' x 14'4''
Bedroom
Main level
10'7'' x 10'11''
3pc Bathroom
Main level
8'3'' x 8'3''
Laundry room
Main level
15'9'' x 8'3''
Living room
Main level
19'6'' x 15'0''
Dining room
Main level
9'10'' x 13'11''
Kitchen
Main level
11'11'' x 14'2''
Foyer
Main level
6'9'' x 16'8''
Foyer
Main level
6'9'' x 12'7''

Location