1538 Forestry Farm Road, Langton, Ontario N0E 1G0

Listed for:
$519,900
3 beds
1 baths
Listed 36 days ago
House for rent: 1538 Forestry Farm Road, Langton, Ontario N0E 1G0

View all 30 photos

Learn more about this property
Listing provided by:
COLDWELL BANKER MOMENTUM REALTY BROKERAGE (Port Rowan)
MLS® number:
40790235
Agent:
Carrie Stengel
*Indicates required field
Name is required
Email is required
Please enter a valid phone number (e.g., 416-111-1111).

About

From Hwy 24 head North on Forestry Farm Rd House is on E side of Rd Discover country charm and everyday convenience with this cozy 3 comfortable bedrooms , 1 bath ,home sitting on just under half an acre, deep lot. Whether you're a first time home buyer, downsizing, or looking for a peaceful retreat, this property checks all the boxes. Featuring a 20' x 24' Detached Shop heated with a wood furnace , ideal for hobbyists, mechanics , woodworkers, or anyone who needs extra workspace or storage. This property offers room to breathe , space to grow, and the perfect blend of country living. A rare find at this price point. (id:27476)

Property Highlights

MLS® Number
40790235
Type
Single Family
Ownership Type
Freehold
Land Size
0.47 ac|under 1/2 acre
Parking Space Total
6

Building

Building Type
House
Storeys
1.00
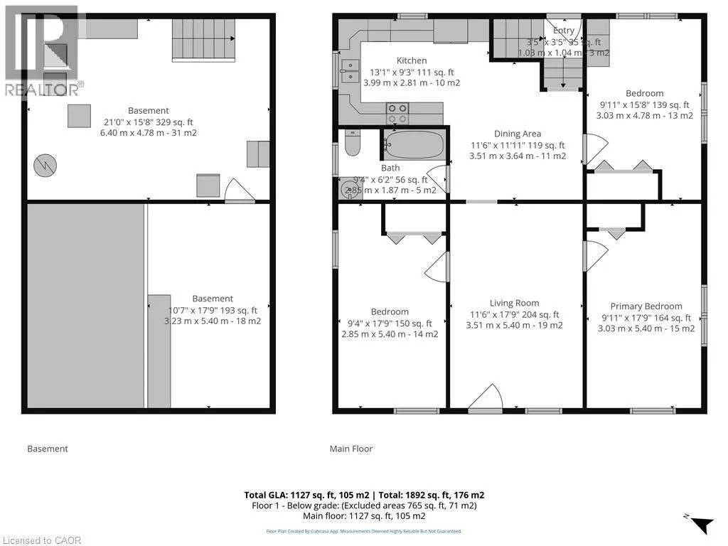
Square Footage
1127 sqft
Bathrooms Total
1
Bedrooms Above Ground
3
Bedrooms Total
3
Exterior Finish
Vinyl siding
Fireplace Present
No
Basement Type
Partial (Unfinished)
Basement Features
Building Heating Type
Heating Fuel
Natural gas
Building Cooling Type
Central air conditioning

Utilities

Water
Sand point
Utility Sewer
Septic System

Room Layout

Foyer
Main level
3'5'' x 3'5''
Primary Bedroom
Main level
9'11'' x 17'9''
Dinette
Main level
11'6'' x 11'11''
4pc Bathroom
Main level
9'4'' x 6'2''
Kitchen
Main level
13'1'' x 9'3''
Living room
Main level
11'6'' x 17'9''
Bedroom
Main level
9'4'' x 17'9''
Bedroom
Main level
9'11'' x 15'8''

Location