3560 Oke Drive, LaSalle, Ontario N9J 0E9

Listed for:
$1,560,900
4 beds
3 baths
Listed 19 days ago
House for rent: 3560 Oke Drive, LaSalle, Ontario N9J 0E9

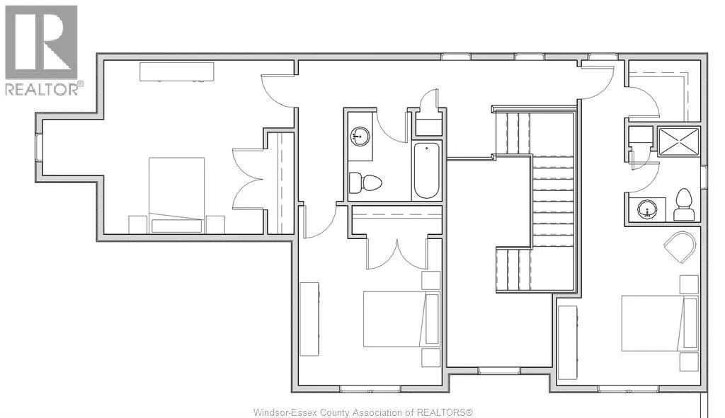
View all 15 photos

Learn more about this property
Listing provided by:
KELLER WILLIAMS LIFESTYLES REALTY
MLS® number:
25020592
Agent:
Peter-james Lucente
*Indicates required field
Name is required
Email is required
Please enter a valid phone number (e.g., 416-111-1111).

About

Welcome to Oke Drive in Villa Oaks Estates, LaSalle's newest and prestigious development. Renowned luxury builder, Wescon Builders, is here to bring you an elevated living experience! With much consideration and careful planning, it is our pleasure to bring you this sprawling 2 Sty on an Executive size lot, featuring 4 bdrms, 3.5 baths, main floor primary suite & 2nd floor junior suite, 8' interior doors, to name a few. A blend of thoughtful design, sleek lines, and the highest-quality materials & finishes that give it its lavish charm further boasting its captivating appeal. While embracing modern design principles, it exudes a timeless elegance that will transcend trends. It will remain a symbol of luxury and sophistication for years to come. Opt for a completed lower level, with or without our optional in-law suite & grade entrance, and maximize your living experience to over 5300sf of finished living space. Inquire today for more info, model & lot options. (id:27476)

Property Highlights

MLS® Number
25020592
Type
Single Family
Ownership Type
Freehold
Land Size
65.73 X 190.37 FT

Building

Building Type
House
Storeys
2.00
Square Footage
3200 sqft
Bathrooms Total
3
Bedrooms Above Ground
4
Bedrooms Total
4
Exterior Finish
Brick, Stone, Concrete/Stucco
Fireplace Present
Yes
Basement Type
Basement Features
Building Heating Type
Forced air, Furnace, Heat Recovery Ventilation (HRV)
Heating Fuel
Natural gas
Building Cooling Type
Central air conditioning

Location