1826 Wyoming Avenue Unit# 103, LaSalle, Ontario N9H 0P6

Listed for:
$2,795
2 beds
2 baths
Listed 51 days ago
Apartment for rent: 1826 Wyoming Avenue Unit# 103, LaSalle, Ontario N9H 0P6

View all 22 photos

About

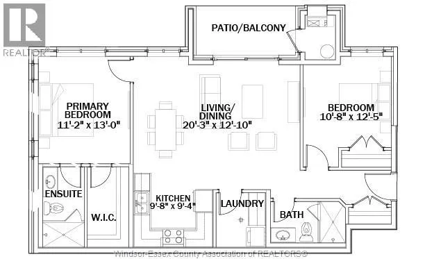
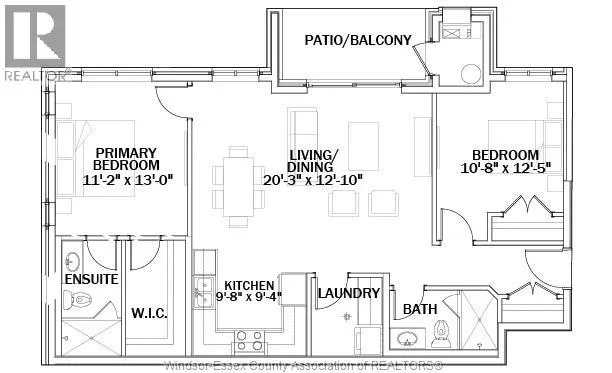
Malden to Wyoming Only suite available in this sought after building. Main-floor suite with tranquil creek views, offering a perfect blend of comfort and convenience at The Griffon in the heart of LaSalle. This luxury 2-bedroom, 2-bath residence features a bright open-concept layout with premium kitchen finishes, in-suite laundry, and a spacious primary bedroom complete with walk-in closet and private ensuite. Residents enjoy access to an exclusive rooftop terrace ideal for relaxing or entertaining. Steps to groceries, medical offices, banks, and LaSalle’s scenic walking trails. Minimum one-year lease required; first and last month’s rent due at signing. Employment verification and credit report to accompany all applications. See floor plan in photos for unit floor plan. ALL OFFERS MUST INCLUDE ATTACHED SCHEDULE B. (id:27476)

Property Highlights

MLS® Number
26003926
Type
Single Family
Maintenance Fee
0.00
Ownership Type
Condominium/Strata
Land Size
0 X 0 / 0 AC

Building

Building Type
Apartment
Square Footage
1200 sqft
Bathrooms Total
2
Bedrooms Above Ground
2
Bedrooms Total
2
Exterior Finish
Brick, Vinyl
Fireplace Present
No
Basement Type
Basement Features
Building Heating Type
Forced air, Furnace, Heat Recovery Ventilation (HRV)
Heating Fuel
Natural gas
Building Cooling Type
Central air conditioning

Location

Learn more about this property
Listing provided by:
REMAX PREFERRED REALTY LTD. - 584
MLS® number:
26003926
Agent:
Antonietta Di Nardo-evon
*Indicates required field
Name is required
Email is required
Please enter a valid phone number (e.g., 416-111-1111).