4895 Terra Bella Drive, LaSalle, Ontario N9H 0N1

Listed for:
$929,900
5 beds
4 baths
Listed 12 days ago
House for rent: 4895 Terra Bella Drive, LaSalle, Ontario N9H 0N1

View all 7 photos

About

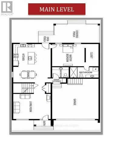
Cross Streets: Meo Blvd. ** Directions: Huron Church Line to Terra Bella Drive. Welcome to Roseland Homes' newest design in prestigious Laurier Heights, located in LaSalle's most upscale newer neighbourhood. Surrounded by multi-million dollar homes and just steps from Seven Lakes Golf Course, this executive 2-storey semi-detached home offers approximately 2,766 sq. ft. above grade. Featuring 4 or 5 bedrooms, this thoughtfully designed layout comes with an optional 2 Spacious principal rooms W/ensuites, One being on the main floor for retires or multi-generational living. , modern finishes, and flexible living spaces make this home perfect for families seeking luxury and functionality in a prime location. Introductory Pricing for limited time Offering 2.99% Mortgage interest rate guaranteed for 3 years. "Taxes not yet assessed" PURCHASE PRICE INCLUDES HST REBATE (id:27476)

Property Highlights

MLS® Number
X12922036
Type
Single Family
Community Name
LaSalle
Ownership Type
Freehold
Land Size
42 x 128 FT
Parking Space Total
4

Building

Building Type
House
Storeys
2.00
Square Footage
2500 - 3000 sqft
Bathrooms Total
4
Bedrooms Above Ground
5
Bedrooms Total
5
Amenities
Fireplace(s) Place of Worship, Public Transit, Schools
Exterior Finish
Brick, Stone
Fireplace Present
Yes
Basement Type
Full (Unfinished)
Basement Features
Building Heating Type
Forced air
Heating Fuel
Natural gas
Building Cooling Type
Central air conditioning

Utilities

Water
Municipal water
Utility Sewer
Sanitary sewer

Location

Learn more about this property
Listing provided by:
GRACE CANADA REALTY INC.
MLS® number:
X12922036
Agent:
Omar Aziz
*Indicates required field
Name is required
Email is required
Please enter a valid phone number (e.g., 416-111-1111).

Street Spotlight - For sale