Lot 1 Tenth Street, LaSalle, Ontario N8N 1M2

Listed for:
$1,150,000
6 beds
4 baths
Listed 11 days ago
House for rent: Lot 1 Tenth Street, LaSalle, Ontario N8N 1M2

View all 14 photos

About

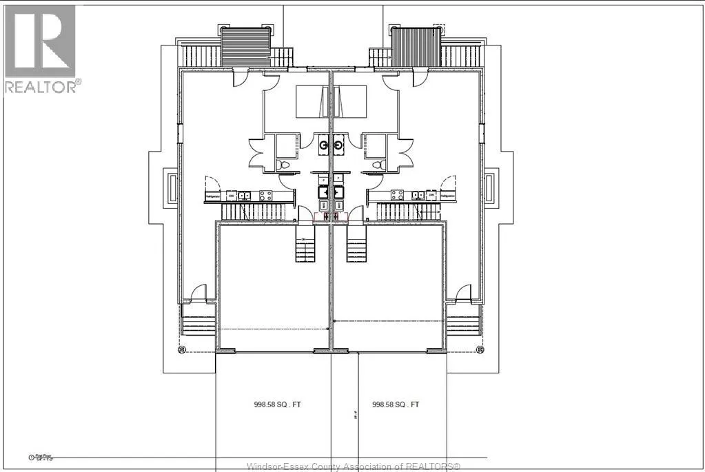
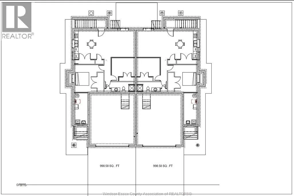
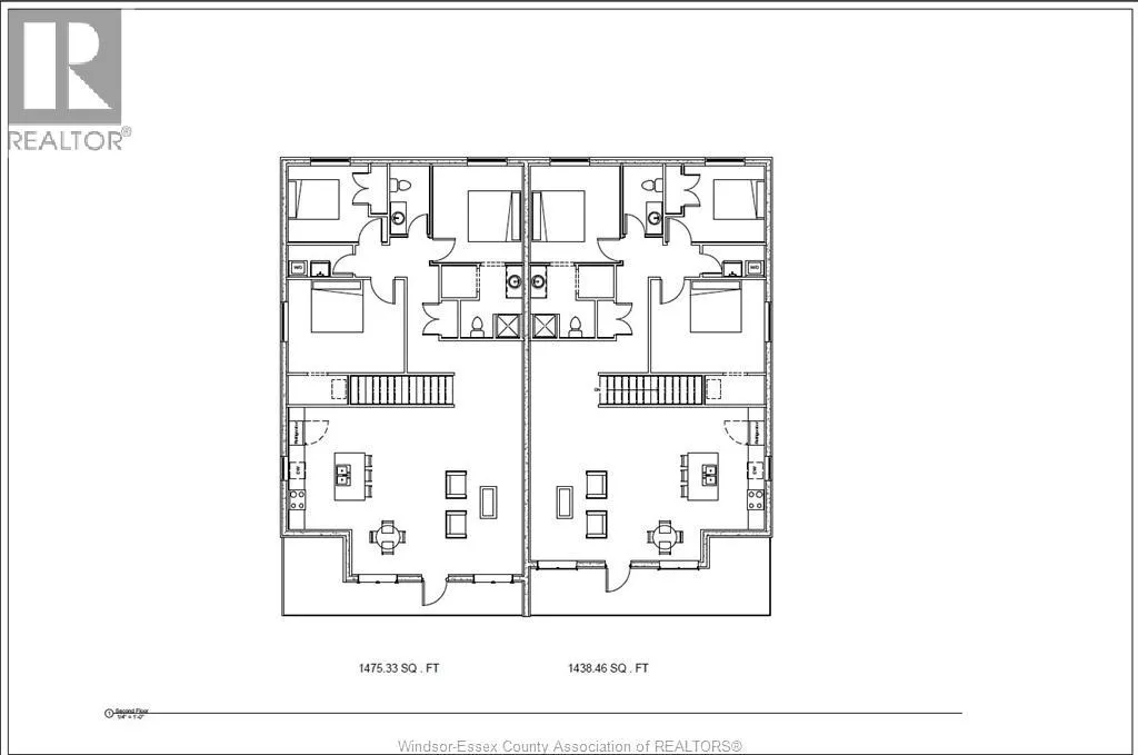
Multi-Generational Living | Net Zero Ready Solar Optional | Income Potential. SAVE UP TO $130,000 ON YOUR NEW HOME! TO BE BUILT HOME Experience modern luxury in the heart of LaSalle with approx. 3,500 sq.ft. Living space this home is designed for today’s evolving families. Built with premium ICF construction, this property delivers superior soundproofing, durability, exceptional energy efficiency—offering lower utility costs for long-term value. Featuring 6 bedrooms, 4 full baths, 3 kitchens,3 laundry, 2 car garage. This home is perfectly configured for multi-family living with privacy. The innovative 3-in-1 layout includes a main floor 1-bed suite, spacious 3-bed upper level, and a fully self-contained legal 2-bedroom ADU w/separate entrance—ideal for rental income or extended family. Bright open spaces, high ceilings, double car insulated garage. Contact Listing Agent directly for more information and promotions today!! CURRENT PRICING NOW REFLECTS THE ONTARIO GOVERNMENTS FULL **HST** REBATE (id:27476)

Property Highlights

MLS® Number
26007176
Type
Single Family
Ownership Type
Freehold
Land Size
37.25 X 109.28 FT

Building

Building Type
House
Storeys
2.00
Square Footage
3446 sqft
Bathrooms Total
4
Bedrooms Above Ground
4
Bedrooms Total
6
Exterior Finish
Aluminum/Vinyl, Brick
Fireplace Present
No
Basement Type
Basement Features
Building Heating Type
Heat Pump, Heat Recovery Ventilation (HRV)
Heating Fuel
Electric, Solar
Building Cooling Type
Central air conditioning, Heat Pump

Location

Learn more about this property
Listing provided by:
KW SIGNATURE
MLS® number:
26007176
Agent:
Joe Fallea
*Indicates required field
Name is required
Email is required
Please enter a valid phone number (e.g., 416-111-1111).