31 Eagle, Leamington, Ontario N8H 3V4

Listed for:
$599,999
0 beds
0 baths
Listed 13 days ago
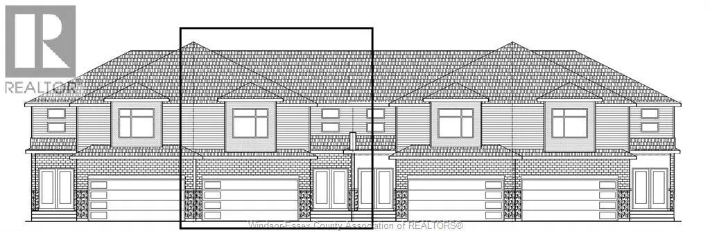
Row / Townhouse for rent: 31 Eagle, Leamington, Ontario N8H 3V4

View all 31 photos

About

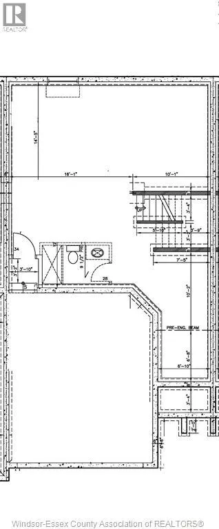
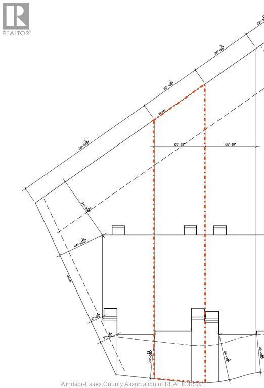
PRESENTING 31 EAGLE ST. IN NEWLY DEVELOPED BEVEL LINE VILLAGE. MIDDLE UNIT 2 STOREY HOME BOASTING 4 BEDROOMS, 3 BATH(ENSUITE) & 2ND FLOOR LAUNDRY. MASTER BDRM W/ENSUITE WITH W-IN CLST, OPEN CONCEPT LAYOUT W/ MODERN KITCHEN INCLUDING ISLAND AND BUILT IN PANTRY, QUARTZ COUNTERTOP & TILE BACKSPLASH. LRG FAM RM, LARGE WINDOWS, PATIO SLIDER WITH BLINDS OFF THE NOOK. ENGINEERED HARDWOOD THROUGHOUT THE HOME, TILE BATHS KITCHEN AND WET AREAS. WAYNE SCOTTING IN FOYER, UPGRADED DOORS AND TRIMS, MIRRORS IN BATHROOMS ETC. UNFINISHED LWR LVL HAS ROUGHED IN KITCHEN, BATHROOM FOR FUTURE POTENTIAL. FINISHED INSULATED DBL CAR GARAGE WITH INSIDE ENTRY, CONCRETE PAVED DRIVEWAY. HIGH EFFICIENCY FURNACE, HRV SYSTEM AND MORE. SITTING ON A LARGE IRREGULAR SHAPED LOT, MINUTES AWAY FROM POINT PELEE NAT'L PARK, ERIE SHORES GOLF & COUNTRY CLUB & LEAMINGTON MARINA. ALWAYS ATTACHED TARION 7 YEAR WARRANTY, EMAIL L/S FOR MORE INFO. ALL OFFERS MUST INCLUDE ATTACHED SCHEDULE B. (id:27476)

Property Highlights

MLS® Number
26005782
Type
Multi-family
Ownership Type
Freehold
Land Size
IRREGULAR

Building

Building Type
Row / Townhouse
Storeys
2.00
Exterior Finish
Brick, Stucco
Fireplace Present
No
Basement Type
Basement Features
Building Heating Type
Furnace, Heat Recovery Ventilation (HRV)
Heating Fuel
Natural gas
Building Cooling Type
Central air conditioning

Location

Learn more about this property
Listing provided by:
MLS® number:
26005782
Agent:
Shadi Habib
*Indicates required field
Name is required
Email is required
Please enter a valid phone number (e.g., 416-111-1111).