Parcel 8 Tintern Road, Lincoln, Ontario L0R 2C0

Listed for:
$1,699,900
3 beds
3 baths
Listed 58 days ago
House for rent: Parcel 8 Tintern Road, Lincoln, Ontario L0R 2C0

View all 10 photos

Learn more about this property
Listing provided by:
COLDWELL BANKER MOMENTUM REALTY, BROKERAGE
MLS® number:
X12427415
Agent:
Ron Vahrmeyer
*Indicates required field
Name is required
Email is required
Please enter a valid phone number (e.g., 416-111-1111).

About

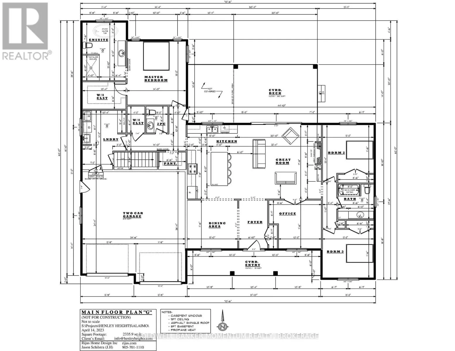
Cross Streets: Spring Creek. ** Directions: From Victoria Ave go west on Spring Creek Rd, turn north on Tintern Rd. Property is just north of Spring Creek Rd. Welcome to this second to none exclusive 11 lot country estate community located in the extra quiet Hamlet of Tintern. Where stunning craftsmanship meets elegant living Henley Heights Construction is proud to offer their expertise in building you a custom-built showpiece that reshapes the concept of a home. With a longstanding reputation for Quality Built (3 generations) in the Custom Home Building industry, Henley Heights is synonymous with excellence, integrity, and personalized custom service. Set on a gorgeous country lot being approximately 1.2-acres in size, this stunning to-be-built bungalow offers a rare opportunity to create the home of your dreams. Featuring a thoughtfully custom designed layout offering 3 bedrooms + office, 3 bathrooms including a spa like ensuite, an extra large open concept great room/kitchen and where every detail can be tailored to reflect your unique vision and lifestyle. The exterior is just as spectacular as the interior, offering a striking blend of stone and premium vinyl siding that complements the natural surroundings and the substantial covered front porch and the outstanding covered rear deck. When you move to this magnificent location you will wake up to the peaceful sounds of nature just outside your bedroom windows and to the outstanding wineries just minutes from your front door. Whether you're seeking outdoor adventure or quiet moments in a serene setting, this location offers the best of both worlds. This is more than a house its the dream of your future. A perfect fusion of luxury, comfort, and nature, waiting for your personal touch. Call today for a preview of your dream home in an extra quiet dream location. Please call regarding other building lots and custom home plans that are also available. (id:27476)

Property Highlights

MLS® Number
X12427415
Type
Single Family
Community Name
983 - Escarpment
Ownership Type
Freehold
Land Size
131 x 403 FT|1/2 - 1.99 acres
Parking Space Total
8

Building

Building Type
House
Storeys
1.00
Square Footage
2000 - 2500 sqft
Bathrooms Total
3
Bedrooms Above Ground
3
Bedrooms Total
3
Exterior Finish
Stone, Vinyl siding
Fireplace Present
No
Basement Type
Full
Basement Features
Building Heating Type
Forced air
Heating Fuel
Propane
Building Cooling Type
Central air conditioning

Utilities

Water
Cistern
Utility Sewer
Septic System

Room Layout

Foyer
Main level
3.51 m x 2.08 m
Kitchen
Main level
5.39 m x 3.66 m
Bathroom
Main level
1.93 m x 1.58 m
Bathroom
Main level
2.54 m x 2.59 m
Dining room
Main level
3.51 m x 3.66 m
Great room
Main level
5.39 m x 6.1 m
Office
Main level
3.51 m x 3.1 m
Primary Bedroom
Main level
4.62 m x 4.27 m
Bedroom 2
Main level
4.07 m x 3.71 m
Bedroom 3
Main level
3.51 m x 3.71 m
Laundry room
Main level
4.32 m x 3.15 m
Bathroom
Main level
4.22 m x 3.15 m

Location