1 Water Street, Little Current, Ontario P0P 1K0

Listed for:
$1,449,000
0 beds
0 baths
Listed 202 days ago
1 Water Street, Little Current, Ontario P0P 1K0

View all 33 photos

About

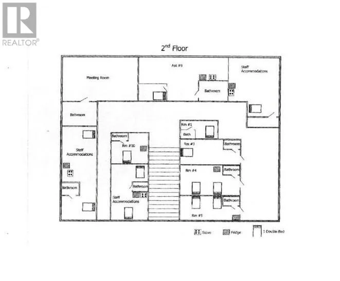
The Anchor Inn stands as a remarkable 136-year-old landmark business in the heart of Little Current on Manitoulin Island. Strategically positioned across from the bustling town docks in the downtown core, this iconic establishment has become a cornerstone of both the local community and the island's tourism industry. This thriving business currently features a vibrant and spacious dining room/restaurant, a popular bar that draws both locals and visitors, professional catering services, and 17 well-maintained rental units. The Anchor Inn boasts impressive financial performance with strong cash flow, making it an exceptional investment opportunity. It currently is open 5 days a week providing the potential to expand sales. Under both current and previous ownership, the property has received consistent upgrades and maintenance, preserving its historic charm while ensuring modern functionality. As a mainstay of Manitoulin Island's hospitality scene for over a century, The Anchor Inn represents a rare chance to acquire an established business with a rich heritage and proven success. Could this historic waterfront property be the golden business opportunity you've been searching for? (id:27476)

Property Highlights

MLS® Number
2125060
Type
Hospitality
Ownership Type
Freehold
Land Size
under 1/2 acre

Building

Exterior Finish
Brick, Metal, Stucco
Fireplace Present
No
Basement Type
Basement Features
Building Heating Type
Boiler
Heating Fuel
Building Cooling Type

Utilities

Water
Municipal water
Utility Sewer
Municipal sewage system

Location

Learn more about this property
Listing provided by:
J. A. ROLSTON LTD. REAL ESTATE BROKERAGE
MLS® number:
2125060
Agent:
Rob Norris
*Indicates required field
Name is required
Email is required
Please enter a valid phone number (e.g., 416-111-1111).