1 Blake Street, Little Current, Ontario P0P 1K0

Listed for:
$299,000
3 beds
2 baths
Listed 28 days ago
House for rent: 1 Blake Street, Little Current, Ontario P0P 1K0

View all 40 photos

About

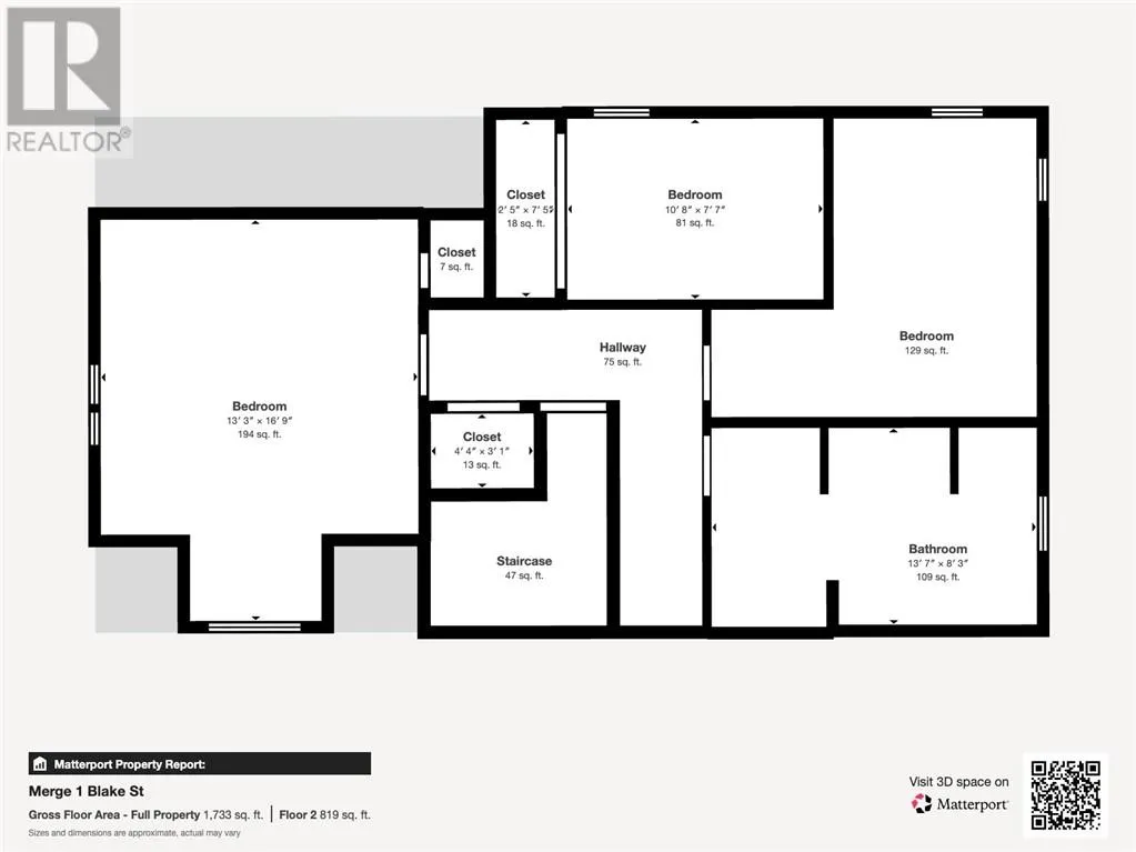
Full of character and ready for its next chapter, this charming 2-storey home offers a solid footprint, original details, and an unbeatable in-town location. With 3 bedrooms, 2 bathrooms, and approximately 1,500 sq ft of living space, this property is ideal for buyers looking to put their own touch on a home with great bones. Many original features remain, including wide baseboards, trim, and hardwood flooring, adding warmth and timeless appeal throughout. The layout is practical and inviting, with room to update and personalize over time. Set on a generous lot with a detached garage and gravel parking, this fully serviced property is just a 1-minute walk to the public school and only 5 minutes to downtown, making daily life easy and walkable. Whether you’re a first-time buyer, renovator, or someone who appreciates the character of an older home, this property offers excellent potential in a location that’s hard to beat. (id:27476)

Property Highlights

MLS® Number
2125983
Type
Single Family
Ownership Type
Freehold
Land Size
under 1/2 acre

Building

Building Type
House
Storeys
2.00
Bathrooms Total
2
Bedrooms Total
3
Exterior Finish
Vinyl siding
Fireplace Present
No
Basement Type
Partial
Basement Features
Building Heating Type
Baseboard heaters
Heating Fuel
Building Cooling Type

Utilities

Water
Municipal water
Utility Sewer
Municipal sewage system

Location

Learn more about this property
Listing provided by:
BOUSQUET REALTY, BROKERAGE
MLS® number:
2125983
Agent:
Abbie Drolet
*Indicates required field
Name is required
Email is required
Please enter a valid phone number (e.g., 416-111-1111).