627 St James Street, London East, Ontario N5Y 3P9

Listed for:
$559,900
5 beds
3 baths
Listed 90 days ago
House for rent: 627 St James Street, London East, Ontario N5Y 3P9

View all 39 photos

Learn more about this property
Listing provided by:
PC275 REALTY INC.
MLS® number:
X12350609
Agent:
Tracy Ellis
*Indicates required field
Name is required
Email is required
Please enter a valid phone number (e.g., 416-111-1111).

About

Cross Streets: Adelaide and Oxford. ** Directions: Traveling east on Oxford Street, turn left onto Adelaide St N then right onto St James St, house is on the right side. Welcome to this updated home offering exceptional space and character in one of the city's most sought-after neighbourhoods. The inviting covered front porch sets the tone for the warmth and comfort inside. The main floor features a spacious primary bedroom and a large eat-in kitchen complete with an island perfect for entertaining. Upstairs, you'll find two cozy bedrooms and a charming play nook, ideal for little ones or creative space. A clawfoot tub adds vintage elegance. The basement offers incredible flexibility with a separate entrance, a full kitchen, two additional bedrooms, a living area, and a full bathroom ideal for extended family, guests, or potential income opportunities. Step outside to your own urban oasis featuring a tranquil backyard, large deck, gazebo area, and a spacious barn/storage building a rare find in the heart of the city. The barn boosts over 470 square feet of space with electricity. Located in the desirable Old North, you're just steps from shopping, transit, a community center, and great restaurants. (id:27476)

Property Highlights

MLS® Number
X12350609
Type
Single Family
Community Name
East C
Ownership Type
Freehold
Land Size
35 x 142 FT|under 1/2 acre
Parking Space Total
3

Building

Building Type
House
Storeys
1.50
Square Footage
700 - 1100 sqft
Bathrooms Total
3
Bedrooms Above Ground
3
Bedrooms Total
5
Amenities
Hospital, Park, Place of Worship, Public Transit
Fireplace Present
No
Basement Type
N/A (Finished), N/A
Basement Features
Separate entrance
Building Heating Type
Forced air
Heating Fuel
Natural gas
Building Cooling Type
Central air conditioning

Utilities

Water
Municipal water
Utility Sewer
Sanitary sewer

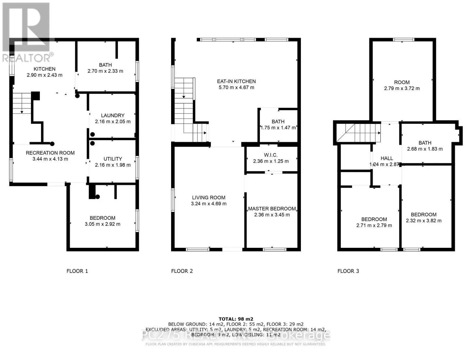
Room Layout

Bathroom
Second level
2.68 m x 1.83 m
Bedroom
Second level
2.92 m x 3.91 m
Bedroom
Second level
2.84 m x 2.92 m
Office
Basement
3.05 m x 2.92 m
Bathroom
Basement
2.7 m x 231 m
Kitchen
Basement
2.9 m x 2.43 m
Den
Basement
3.44 m x 4.13 m
Utility room
Basement
2.16 m x 1.98 m
Bedroom
Basement
3.05 m x 2.92 m
Kitchen
Main level
1.93 m x 4.7 m
Bathroom
Main level
1.75 m x 1.25 m
Dining room
Main level
3.89 m x 4.7 m
Living room
Main level
3.33 m x 4.83 m
Bedroom
Main level
2.44 m x 3.78 m

Location