225 Wellington Street, London East, Ontario N6B 2L2

Listed for:
$750,000
0 beds
0 baths
Listed 131 days ago
Residential Commercial Mix for rent: 225 Wellington Street, London East, Ontario N6B 2L2

View all 40 photos

About

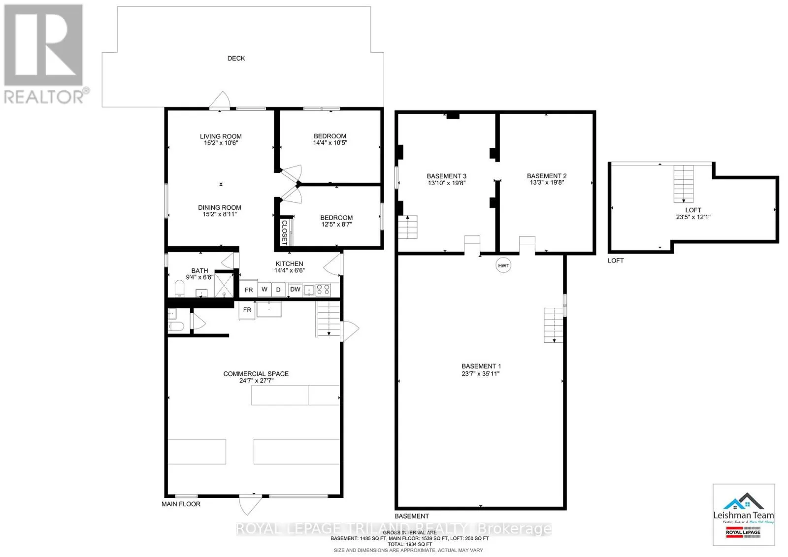
Cross Streets: Horton St and Wellington St. ** Directions: From Horton St, head south on Wellington St and it's on the right. Rare opportunity in downtown London a live/work property combining prime commercial space with a beautiful residence. The front commercial unit offers outstanding exposure to over 80,000 cars daily and features huge windows to showcase your business. Zoning allows for many uses, from a bakery (equipment negotiable) to yoga/fitness, retail, or office. The lower level adds 1,485 sq. ft. of storage/workshop space for extra functionality. The back half of the building is a spacious two-bedroom plus loft home with vaulted ceilings, a large 9 x 6 bathroom with walk-in shower, bright living areas, and generous bedrooms. Step outside to a sprawling deck overlooking a landscaped, fully fenced yard with fruit trees and gardens. Parking for potentially up to four vehicles adds convenience, while recent upgrades include a newer roof, newer windows, and excellent insulation. This property offers incredible flexibility: live in the back and operate your business in the front, rent the residential side while using the commercial space, or live in the home and lease the storefront as a mortgage helper. Separate commercial taxes ($4,232.87) and residential taxes ($1,260.93) help keep ownership efficient. Seller is open to VTB, creating even more opportunity. With its unbeatable exposure, versatile zoning, and move-in-ready home, this property is ideal for entrepreneurs, investors, or anyone seeking a perfect live/work setup in a high-visibility downtown location. (id:27476)

Property Highlights

MLS® Number
X12419372
Type
Retail
Community Name
East K
Land Size
44.75 x 109.78 FT

Building

Building Type
Residential Commercial Mix
Square Footage
1789 sqft
Fireplace Present
No
Basement Type
Basement Features
Building Heating Type
Forced air
Heating Fuel
Electric
Building Cooling Type
Fully air conditioned

Utilities

Water
Municipal water

Location

Learn more about this property
Listing provided by:
ROYAL LEPAGE TRILAND REALTY
MLS® number:
X12419372
Agent:
Ian Sterling Leishman
*Indicates required field
Name is required
Email is required
Please enter a valid phone number (e.g., 416-111-1111).