421 Industrial Road, London East, Ontario N5V 1T6

Listed for:
$2,600,000
0 beds
0 baths
Listed 66 days ago
421 Industrial Road, London East, Ontario N5V 1T6

View all 18 photos

About

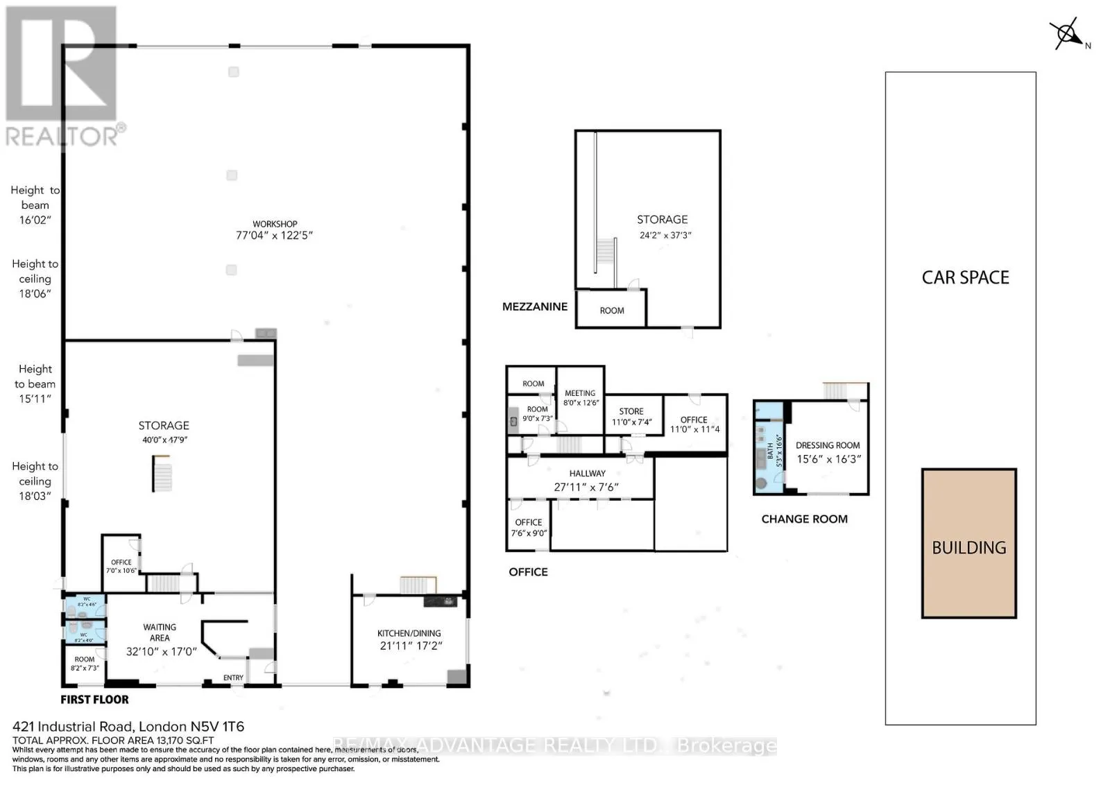
Cross Streets: Industrial & Dundas. ** Directions: north from Dundas, located on West side of Industrial Road. 421 Industrial offers an exceptional opportunity to acquire a clean and well-maintained industrial building, encompassing 11,566 square feet, situated on a spacious 1.57-acre lot. This property features a secure enclosed compound. This investment offers the unique advantage of a leaseback arrangement from the current owner. The building contains 85% industrial with 15% office and ceiling height of 18 feet. The facility is also equipped with four grade-level drive-in doors. Strategically located just east of Veterans Memorial Parkway, the property enjoys convenient access to the London International Airport and nearby 401 & 402 highways. Recent upgrades include a newer roof, electrical updates, and a completed Environmental Report, providing peace of mind for potential investors. The prime location, well-designed layout, and favorable zoning ensure that this property represents a compelling investment opportunity for those looking to expand their portfolio. (id:27476)

Property Highlights

MLS® Number
X12442405
Type
Industrial
Community Name
East I
Land Size
129 x 530.12 FT

Building

Square Footage
11566 sqft
Amenities
Public Transit
Fireplace Present
No
Basement Type
Basement Features
Building Heating Type
Other
Heating Fuel
Building Cooling Type
Partially air conditioned

Utilities

Water
Municipal water
Utility Sewer
Sanitary sewer

Location

Learn more about this property
Listing provided by:
RE/MAX ADVANTAGE REALTY LTD.
MLS® number:
X12442405
Agent:
Eavan Travers
*Indicates required field
Name is required
Email is required
Please enter a valid phone number (e.g., 416-111-1111).