A - 337 Spruce Street, London East, Ontario N5W 2P9

Listed for:
$1,850
2 beds
3 baths
Listed 26 days ago
Fourplex for rent: A - 337 Spruce Street, London East, Ontario N5W 2P9

View all 15 photos

Learn more about this property
Listing provided by:
BLUE FOREST REALTY INC.
MLS® number:
X12602908
Agent:
Dina Rato
*Indicates required field
Name is required
Email is required
Please enter a valid phone number (e.g., 416-111-1111).

About

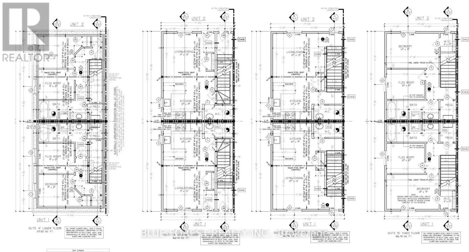
Cross Streets: Borden St. ** Directions: From Dundas turn South onto Spruce St. Perfect for a Families and Students! Brand-new purpose-built apartments available at 337 Spruce Street in a convenient location near Fanshawe College. These modern units offer open-concept layouts with bright living areas, contemporary kitchens, and in-suite laundry. Heat pump system provides both heating and air conditioning for year-round comfort. Some units are estimated to be ready for occupancy starting December 15, 2025. Tenant is responsible for hydro and water. Please note that layouts and finishes may vary between units. 337 Spruce Rent: $1850/month lower A, C units - Rent: $2100/month upper B, D units-All measurements are approximate-depending on individual Unit. Units may differ from drawings or sample photos. (id:27476)

Property Highlights

MLS® Number
X12602908
Type
Multi-family
Community Name
East H
Land Size
33.5 x 96.9 FT
Parking Space Total
1

Building

Building Type
Fourplex
Storeys
2.00
Square Footage
700 - 1100 sqft
Bathrooms Total
3
Bedrooms Above Ground
2
Bedrooms Total
2
Amenities
Separate Electricity Meters Park, Place of Worship, Schools, Public Transit
Exterior Finish
Aluminum siding
Fireplace Present
No
Basement Type
N/A
Basement Features
Apartment in basement
Building Heating Type
Other
Heating Fuel
Building Cooling Type

Utilities

Water
Municipal water
Utility Sewer
Sanitary sewer

Room Layout

Primary Bedroom
Basement
2.69 m x 2.51 m
Bedroom 2
Basement
2.69 m x 2.38 m
Bathroom
Basement
3.96 m x 1.39 m
Kitchen
Main level
4.16 m x 3.45 m
Living room
Main level
4.16 m x 3.45 m
Bathroom
Main level
1.49 m x 1.09 m

Location