421 Richmond Street E, London East, Ontario N6A 3C8

Listed for:
$88,000
0 beds
2 baths
Listed 17 days ago
421 Richmond Street E, London East, Ontario N6A 3C8

View all 25 photos

About

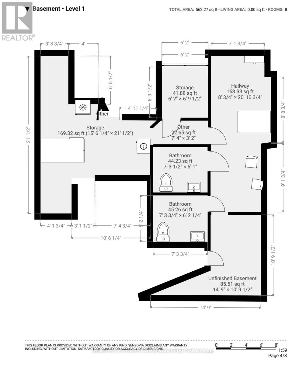
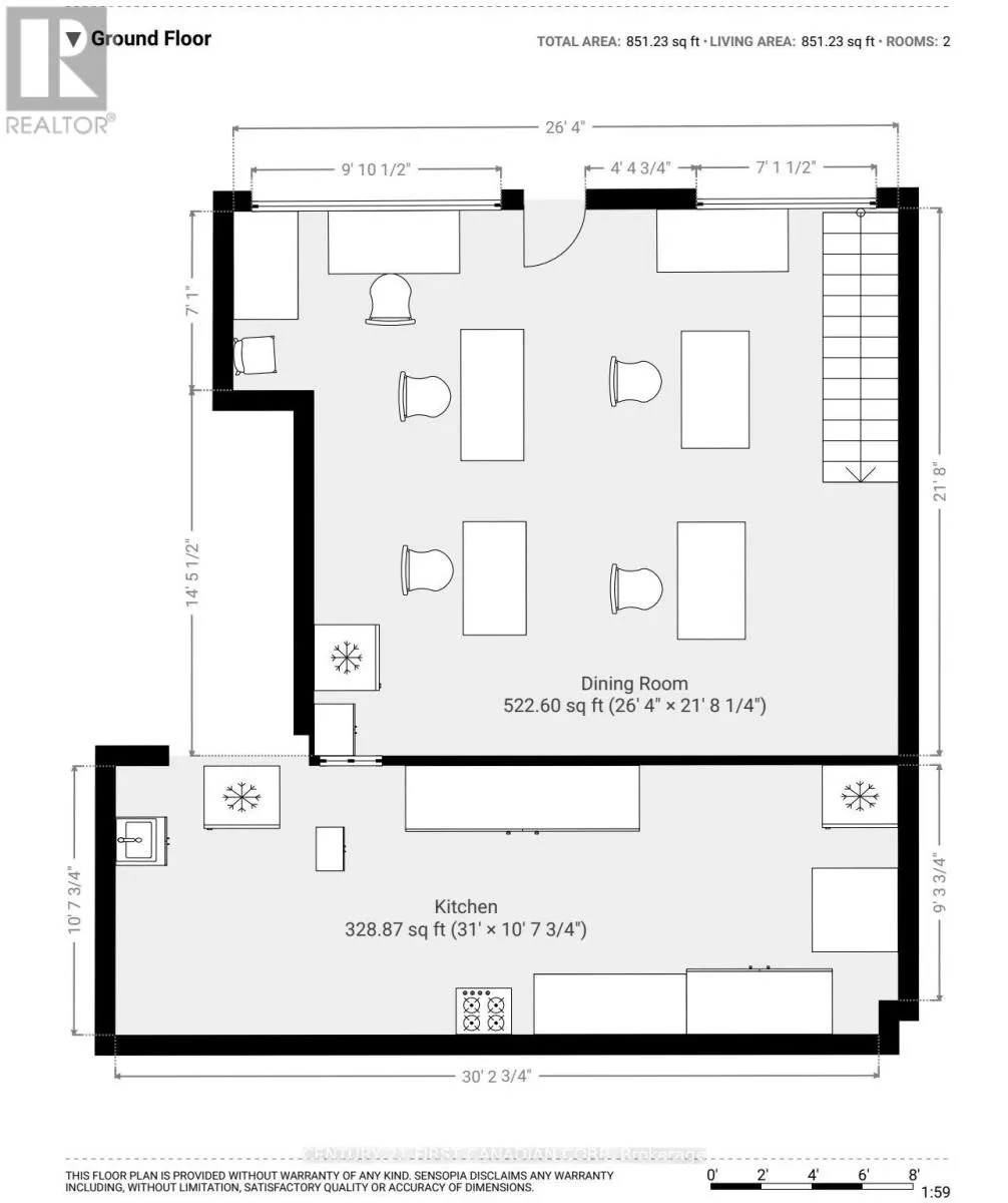
Cross Streets: Richmond Street. ** Directions: Right side of Richmond St, across from Soctia Bank. Very rare opportunity on Richmond Row! This turnkey restaurant located in a prime area with high pedestrian traffic, the property benefits from a bus stop right at the front door and close proximity to Fanshawe College, bringing consistent activity and visibility.The owner has spared no expense in designing and building out this premier location, making it completely move-in ready and eliminating the usual setup headaches. Features include a newer hood system (2019), updated appliances, newer electrical system and newer furniture throughout.With low gross rent of $2,500 and convenient 2-hour free street parking on weekends, this space is ideally positioned across from Scotiabank and close to Citi Plaza and London Music Hall, attracting steady daily traffic. 25 seats. Above ground size of 851 sqft. Partially finished basement for more storage space and 2 bathrooms. Don't miss this rare opportunity to own a fully equipped restaurant in one of the city's busiest corridors (id:27476)

Property Highlights

MLS® Number
X12891800
Type
Business
Community Name
East F
Land Size
Unit=35 FT

Building

Square Footage
851 sqft
Bathrooms Total
2
Fireplace Present
No
Basement Type
Basement Features
Building Heating Type
Forced air
Heating Fuel
Natural gas
Building Cooling Type
Partially air conditioned, Fully air conditioned

Utilities

Water
Municipal water

Location

Learn more about this property
Listing provided by:
CENTURY 21 FIRST CANADIAN CORP
MLS® number:
X12891800
Agent:
Rebecca Sun
*Indicates required field
Name is required
Email is required
Please enter a valid phone number (e.g., 416-111-1111).

Street Spotlight - For sale