123 Thornton Avenue, London East, Ontario N5Y 2Y6

Listed for:
$475,000
2 beds
2 baths
Listed 7 days ago
House for rent: 123 Thornton Avenue, London East, Ontario N5Y 2Y6

View all 43 photos

About

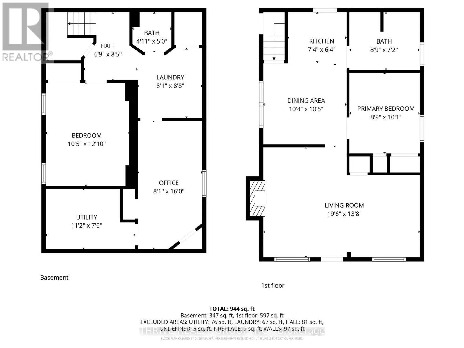
Cheapside and Thornton A charming bungalow in the heart of Old North, perfectly situated on a quiet street and just a short walk to local cafés, pubs, parks, and more. This inviting home offers the ideal blend of character, updates, and lifestyle. Step inside to find two separate living spaces, including a cozy front living room with a gas fireplace, perfect for relaxing evenings. The kitchen is functional and bright, featuring an eat-in dining area and views of the backyard. The main floor also includes a spacious primary bedroom with ample storage and a beautiful 4-piece bathroom. Downstairs, you'll find a finished lower level with two additional rooms and a 2-piece bathroom, offering flexibility for guests, a home office, or extra living space. Recent updates throughout the home provide peace of mind and modern comfort, including professionally installed engineered hardwood flooring (2026), updated bathroom finishes (2026), a new washer (2026), dryer (2025), and hot water heater (2026), fresh paint, new carpet, and keyless entry recently installed for your convenience. Other perks include forced/central air heating and cooling, modern windows (and lots of them), and newly installed front steps (2026). One of the best highlights: the deep 150-foot lot with fully fenced backyard - featuring a patio ideal for outdoor dining or lounging, a stunning magnolia tree, a fire pit area perfect for summer nights under the stars, and more than enough space for an addition. With parking for two cars and an unbeatable location, this home is perfect for first-time buyers, downsizers, or anyone looking to get into one of London's most sought-after neighbourhoods. Welcome home to Thornton Ave, one of the most comfortable and cozy streets in central London! (id:27476)

Property Highlights

MLS® Number
X12935138
Type
Single Family
Community Name
East B
Ownership Type
Freehold
Land Size
33 x 150 FT
Parking Space Total
2

Building

Building Type
House
Storeys
1.00
Square Footage
700 - 1100 sqft
Bathrooms Total
2
Bedrooms Above Ground
1
Bedrooms Total
2
Amenities
Fireplace(s)
Exterior Finish
Vinyl siding
Fireplace Present
Yes
Basement Type
N/A (Finished)
Basement Features
Building Heating Type
Forced air
Heating Fuel
Natural gas
Building Cooling Type
Central air conditioning

Utilities

Water
Municipal water
Utility Sewer
Sanitary sewer

Location

Learn more about this property
Listing provided by:
THRIVE REALTY GROUP INC.
MLS® number:
X12935138
Agent:
Madi Macdonald
*Indicates required field
Name is required
Email is required
Please enter a valid phone number (e.g., 416-111-1111).

Community Spotlight: Homes For sale in Your Neighborhood