520 Hamilton Road, London East, Ontario N5Z 1S4

Listed for:
$1,199,900
0 beds
9 baths
Listed 48 days ago
520 Hamilton Road, London East, Ontario N5Z 1S4

View all 50 photos

About

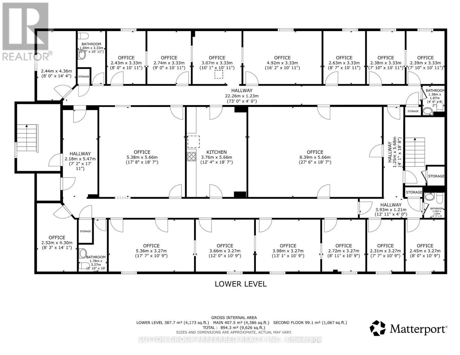
Cross Streets: Hamilton Rd and Chelsey Av. ** Directions: Hamilton Rd between Chelsey and Sackville on the north side of the road. Fantastic office building that is brick to the eaves & very well cared for. 9 washrooms, boardroom, training/class rooms + individual or shared offices. Approx. 9000 sq ft of space available. Many offices have 1-way viewing windows, ideal for focus groups etc. All appointments via showing system & listing realtor will be present at seller's direction. Excellent location. (id:27476)

Property Highlights

MLS® Number
X12935990
Type
Retail
Community Name
East L
Land Size
89.86 x 263.63 FT

Building

Square Footage
9626 sqft
Bathrooms Total
9
Fireplace Present
No
Basement Type
Basement Features
Building Heating Type
Forced air
Heating Fuel
Natural gas
Building Cooling Type
Fully air conditioned

Utilities

Water
Municipal water

Location

Learn more about this property
Listing provided by:
SUTTON GROUP PREFERRED REALTY INC.
MLS® number:
X12935990
Agent:
Warren Shantz
*Indicates required field
Name is required
Email is required
Please enter a valid phone number (e.g., 416-111-1111).

Street Spotlight - For sale